97㎡三居美式风格盛世江城
发布时间:
2020年05月24日
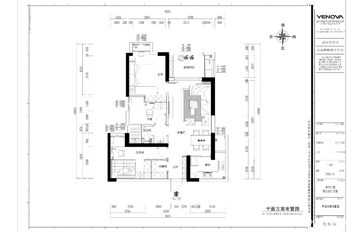
小区:盛世江城 面积:97㎡ 户型:三居 风格:美式风格
设计说明
此户型是一个97㎡三房两厅一厨一卫的户型,各空间面积分布合理,比例协调;本案业主作为目前一家三口的居所,业主对生活品质和收纳储物空间有非常高的要求,希望有一个轻松惬意,明亮干净的居住环境,要求保留两间卧室和一间书房。本案的设计布局简洁,功能完整,色彩协调统一,结构鲜明。保留原始结构的合理性,同时合理利用空间,设计布局完善。考虑到夫妻二人的生活习惯,女主人平时喜欢穿搭,衣物较多,所以设计了衣帽间,满足了日常储物需求;卫生间设计干湿分区,满足客户同时洗漱方便,书房榻榻米设计,最大程度利用空间,内设置书桌,书柜,储物柜,床,功能齐全;卧室与客餐厅分开,动静分区互不影响,功能分区变得更合理;小孩房采用高低床的设计,书桌,书柜,衣柜,一个充满童趣的房间设计。主卧原有的飘窗设计成梳妆台,方便女主人平时梳妆打扮。此户型风格为简美,以浅灰和白色作为色彩的主要基调,不沉闷也不张扬,给人一个恰到好处的轻奢感。富有层次感的灯光的设计,让空间更加精致,软装这一块运用了一个跳色的搭配方式,不寡淡给人一种焕然一新的感觉,一个温馨且舒适的家,立即呈现出来。
户型图

客厅





餐厅





京公安网备11010502040911