230㎡三居新中式风格旅投福美十号院
发布时间:
2020年05月23日
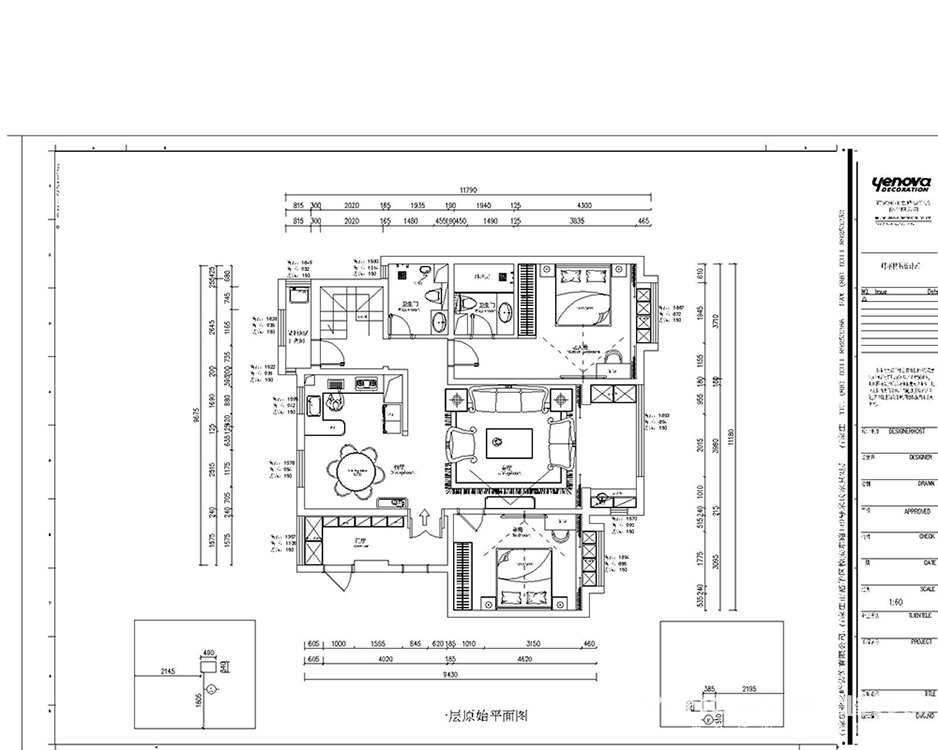
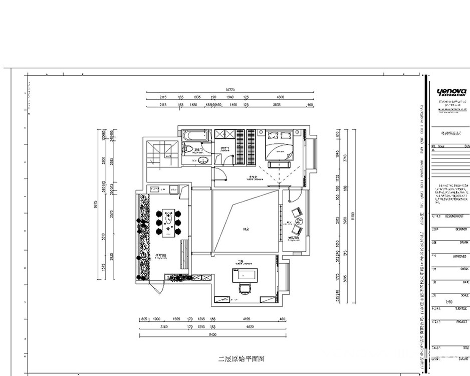
小区:旅投福美十号院 面积:230㎡ 户型:三居 风格:新中式风格
设计说明
本套方案为中式风格,通过空间布局上的合理运用,既能在生活上满足客户的需求,又传达出中式风格独特的灵魂。用利落的线条完美的材质和高档的家具赋予了空间生命力。亮色的点缀和搭配能产生别样的美,为家居带来舒适和安逸。
户型图

书房

客厅





楼梯


阳台


衣帽间

卧室







餐厅


卫生间









京公安网备11010502040911