240㎡四居其他旅投福美十号院
发布时间:
2020年05月23日
小区:旅投福美十号院 面积:240㎡ 户型:四居 风格:其他
设计说明
本套方案为现代轻奢风格,通过空间布局上的合理运用,既能在生活上满足客户的需求,又传达出现在轻奢风格独特的灵魂。用利落的线条完美的材质和高档的家具赋予了空间生命力。亮色的点缀和搭配能产生别样的美,为家居带来舒适和安逸。
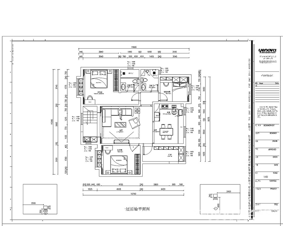
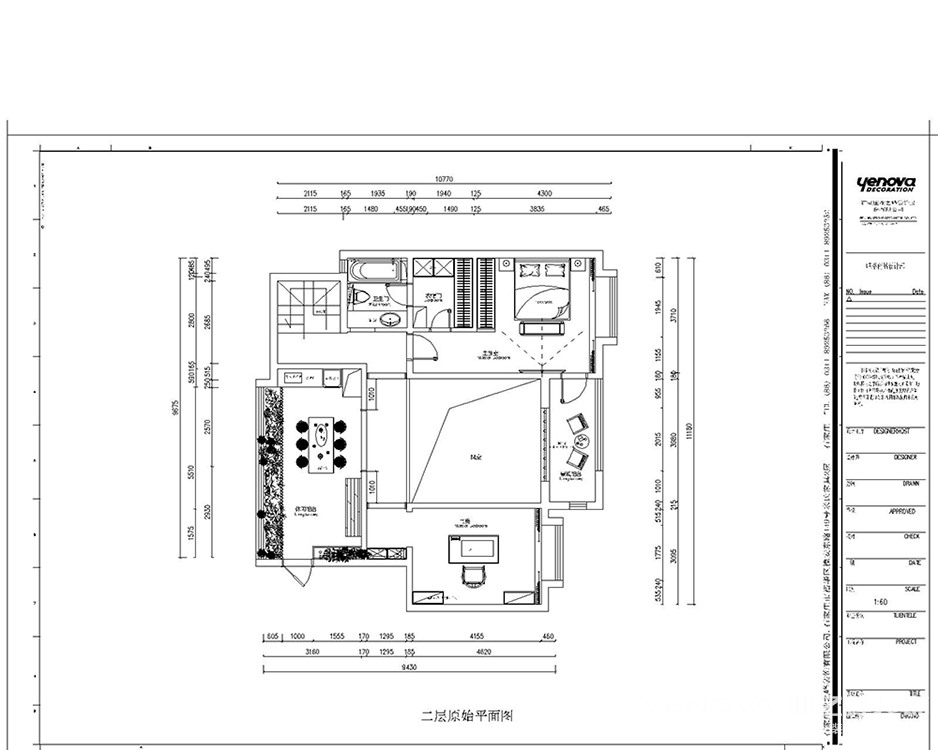
户型图

卧室





餐厅



休闲区



客厅











京公安网备11010502040911