180㎡三居新中式风格融创中心
发布时间:
2020年05月23日
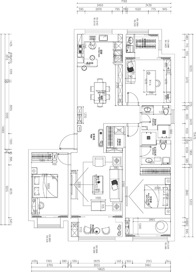
小区:融创中心 面积:180㎡ 户型:三居 风格:新中式风格
设计说明
从平面布局上做了局部微调用来增加收纳的便利性及线条的流畅性,格调定性上本着以“镜”代“形”的原则,突出表达造型美感。因此我们以中式的设计手法为出发点,利用“木质”与“金属”对话的形式塑造这个项目,其中“收纳”与“视觉感受”是本案的重点,打破传统样板间只注重“视觉感受”不注重“生活方式引领”的弊端,力求将二者结合,打造真正适合都市白领的逸居住宅。
户型图

卧室



客厅



餐厅





京公安网备11010502040911