110㎡三居新中式风格名人苑
发布时间:
2020年05月17日
小区:名人苑 面积:110㎡ 户型:三居 风格:新中式风格
设计说明
此居室整体采用中性色调,稳重,大气,却又不失品位,有令人眼前一亮的感觉。最重要的是强调功能性设计,线条简约流畅,色彩对比强烈。由于装饰元素少,以软装去营造家居空间,要给居室留下变换的空间,与现代风格的硬装进行完美的配合,才能显示出美感。
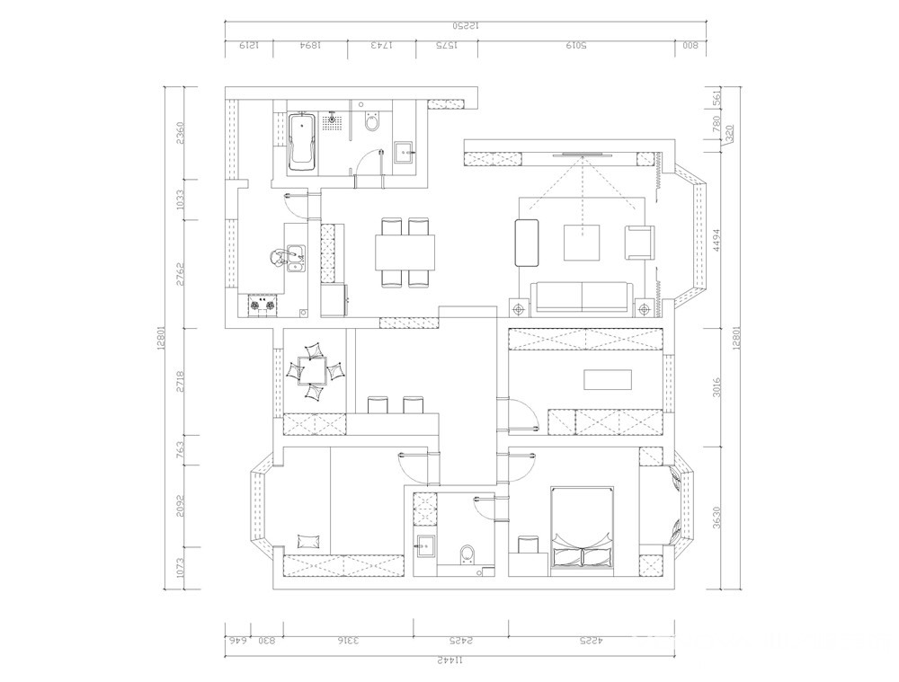
户型图

客厅





餐厅






京公安网备11010502040911