150㎡别墅美式风格金秋泰和郡
发布时间:
2020年05月10日
小区:金秋泰和郡 面积:150㎡ 户型:别墅 风格:美式风格
设计说明
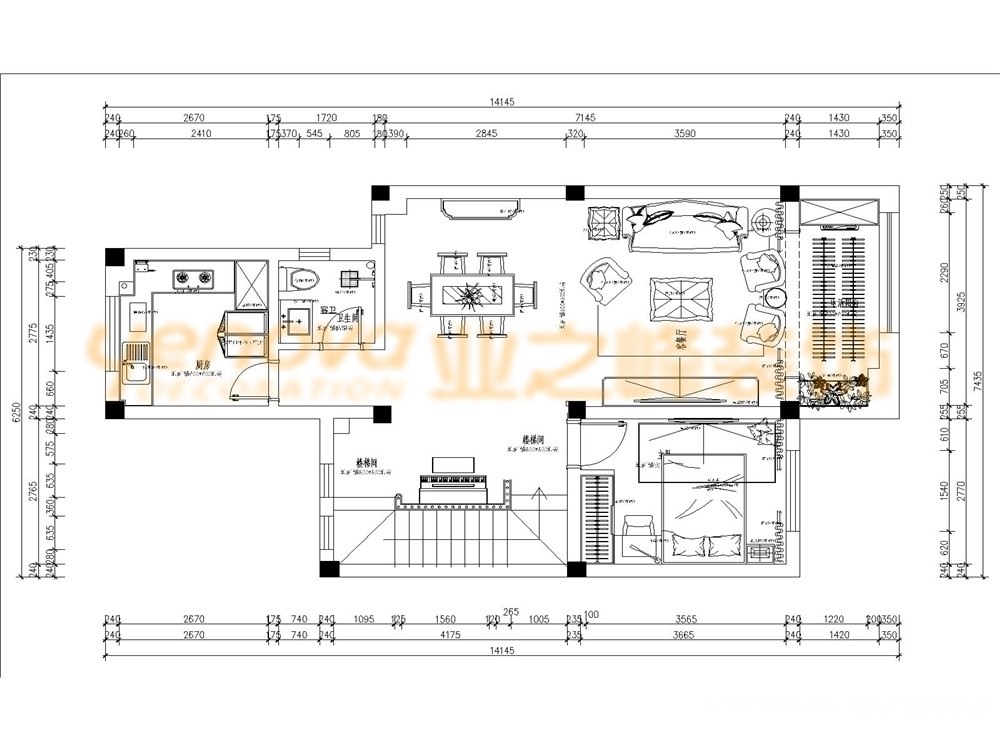
问题1:楼梯间的墙体太多,光照不充足。
解决方案:把楼梯的墙体打掉做成楼梯扶手。
现代轻奢的家居生活是很多人的向往,一个能够称心如意的装修设计方案更是难得,设计师巧妙地融合现代轻奢装饰风格,用创意为主人打造专属的居室环境,带来高品质的现代生活。设计既包含着人性感觉、触觉、视觉的外在感受,又从人的内在神韵上,满足人的灵魂感悟的内在意境,是多元文化、多层次需求的融合。
步入这个家中总有一种艺术家的情怀,设计表现既有现代的简约大气,又有意式的古典美,独特设计的地面砖,总让人在个性几何中寻求一种平衡的美感。较深的第一印象是隐藏着储物空间,线条干净洗练。完全开放的厨房与餐厅有了更多的社交功能,颜色上的对比一下子让空间有了戏剧性,看着不单调。整个空间的设计很好的反映了屋主性格和美学品位,让屋主有喜欢每天回到家的感觉,这里的每一件家具、装饰和摆设都是精心挑选的——装饰画、饰品等等。它们都能带给屋主新鲜的正能量,被这种能量围绕的感觉才是家最好的氛围!
户型图

客厅








餐厅






京公安网备11010502040911