200㎡复式美式风格雁江华府
发布时间:
2020年05月10日
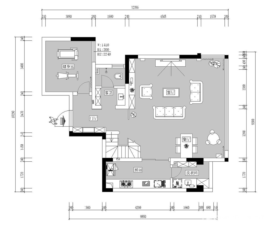
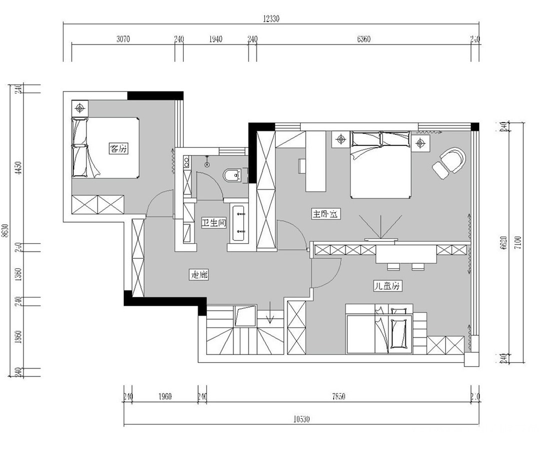
小区:雁江华府 面积:200㎡ 户型:复式 风格:美式风格
设计说明
本套装修案例为200平米跃层,四室三卫的户型。东南户型,采光好。整体色调灰色及白色为主调,打造出时尚简美、轻奢风格的居家环境。主人公不太愿意花费大量精力在家务劳动上,故而功能动线力求简洁、大方、高效、希望能够闲暇之余,在温馨的环境中理一理思绪。
户型图

客厅




楼梯

卧室







京公安网备11010502040911