148㎡三居混搭风格中华世纪城
                  发布时间:
                  2020年05月05日
                
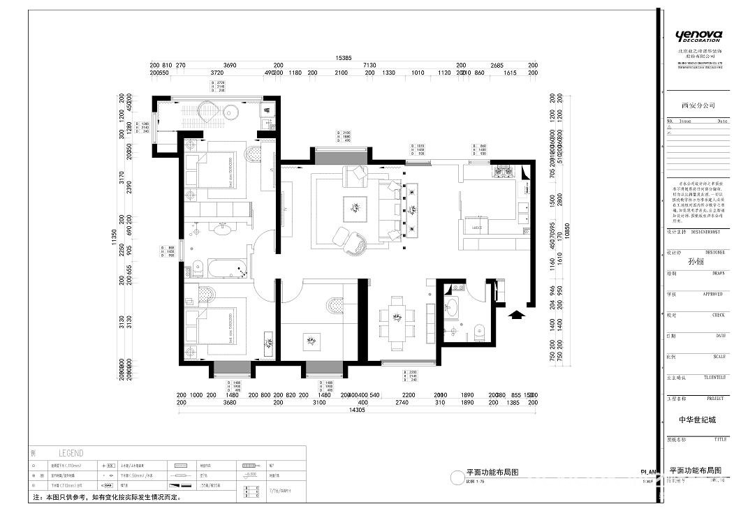
 小区:中华世纪城 面积:148㎡ 户型:三居 风格:混搭风格
设计说明
 客户年纪50岁出头,夫妻两和女儿一起居住,主要是结合新中式和现代风格,不想做传统的中式,喜欢深色调氛围。混搭一是满足不同年代喜好和家居软装搭配,另一方面是结合新的装饰效果去展现主人的生活习惯,让整体既不失中式的端庄和文化底蕴内涵,又加入一些现代简单的配饰修饰。
户型图
 
卧室
 
客厅
 


餐厅
 

 


京公安网备11010502040911