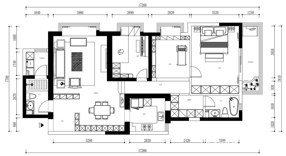
106㎡三居新中式风格长富新城
发布时间:
2020年04月18日
小区:长富新城 面积:106㎡ 户型:三居 风格:新中式风格
设计说明
在本案例中风格定位为新中式。古典厚重的材质铺叙与敞明大方的格局尺度,是新中式设计中不可或缺的重要元素。本案例中用陈设艺术品及复杂的工艺搭配来营造大气、沉稳、轻奢的装饰美学氛围。墙面、地面、家具陈设均以中式篆刻的造型、精细的工艺为其特征,强调品质感。红木色的主色调,低调奢华的家私,碰撞出经典的搭配色彩,永不过时,随着淡淡的希冀让人感受到空间弥漫着温馨与舒畅。
户型图

客厅


餐厅

卧室

卫生间





京公安网备11010502040911