210㎡四居其他星河盛世
发布时间:
2020年03月22日
小区:星河盛世 面积:210㎡ 户型:四居 风格:其他
设计说明
本案定义为现代中式风格,设计过程中将中式风格的一些线条、色彩、造型和木格栅等装饰语言融入到现代的居室设计中,创造出符合现代人生活要求的审美情趣。
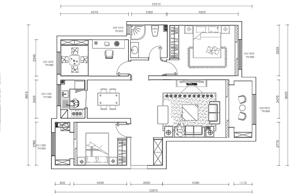
户型图

卧室

书房

客厅


餐厅

玄关

楼梯

本案定义为现代中式风格,设计过程中将中式风格的一些线条、色彩、造型和木格栅等装饰语言融入到现代的居室设计中,创造出符合现代人生活要求的审美情趣。







