138㎡三居新中式风格天玺名著
发布时间:
2020年03月22日
小区:天玺名著 面积:138㎡ 户型:三居 风格:新中式风格
设计说明
本案定义为新中式风格,采用质感极佳的轻金属勾勒线条,整体空间打出层次。玄关位置采用中国传统葫芦造型,寓意福禄双全,且设计中采用圆形穹顶配合地面百凤云集拼花图案,另隔墙采围合造型。寓意聚气聚财
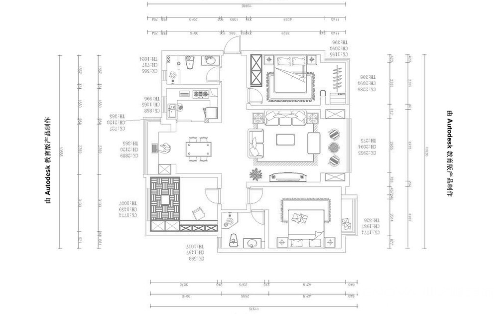
户型图

餐厅

玄关

客厅




卧室

本案定义为新中式风格,采用质感极佳的轻金属勾勒线条,整体空间打出层次。玄关位置采用中国传统葫芦造型,寓意福禄双全,且设计中采用圆形穹顶配合地面百凤云集拼花图案,另隔墙采围合造型。寓意聚气聚财







