167㎡四居简欧风格万达文化旅游城
发布时间:
2020年01月14日
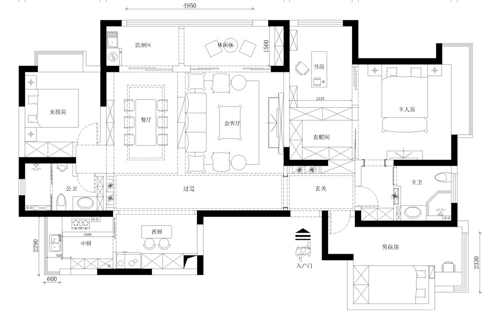
小区:万达文化旅游城 面积:167㎡ 户型:四居 风格:简欧风格
设计说明
咨询电话:0791-86296016,本案的设计风格为简约欧式,营造典雅、自然、高贵的气质、浪漫的情调是本案的主题。简欧设计风格其实是经过改良的古典欧式主义风格。欧洲文化丰富的艺术底蕴,开放、创新的设计思想及其尊贵的姿容,一直以来颇受众人喜爱与追求。简欧风格从简单到繁杂、从整体到局部,精雕细琢,镶花刻金都给人一丝不苟的印象。
户型图

卧室

客厅





儿童房


餐厅

玄关





京公安网备11010502040911