600㎡别墅新中式风格缦纱半岛
发布时间:
2020年01月13日
小区:缦纱半岛 面积:600㎡ 户型:别墅 风格:新中式风格
设计说明
入户门厅将中式风格纹饰的元素体现的淋漓尽致。客厅不规则的茶台简洁线条的家具,面对着正面的落地窗户,及富有偷得浮生半日闲的意味。老人房减少多余的家居摆件,营造一个纯粹的睡眠休息空间。主卧室则相反,强调了身份感,用恰到好处的颜色搭配塑造了一个有着高品质要求的精致空间。厨卫的的设计将现代简洁和新潮中式相融合落落大方。
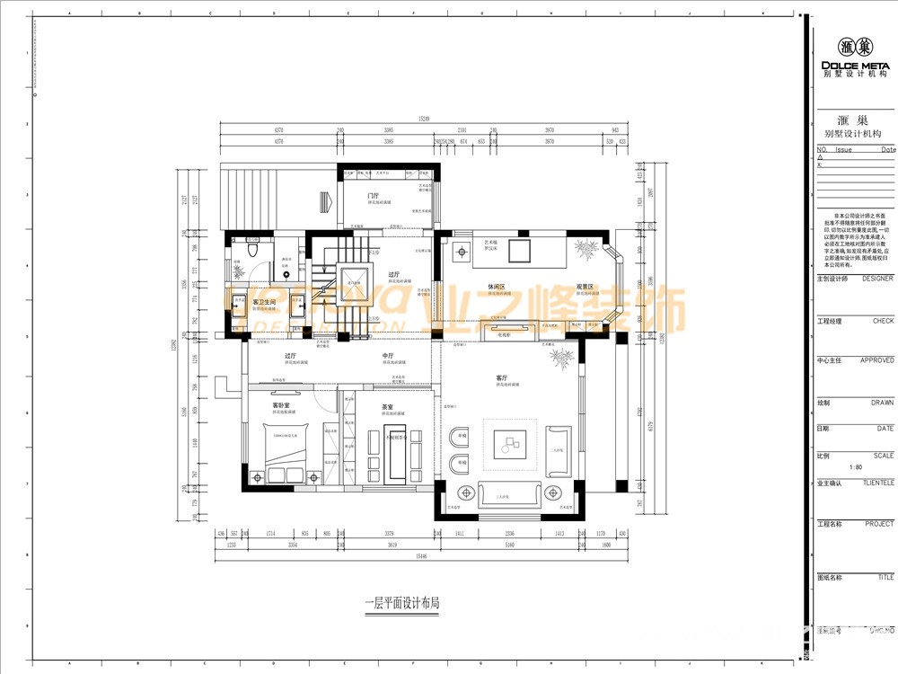
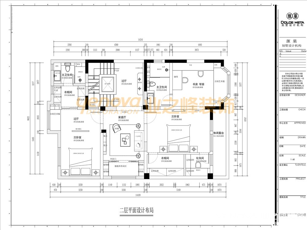
户型图

客厅




休闲区

餐厅

卧室

卫生间





京公安网备11010502040911