290㎡复式现代简约风格南湖意境
发布时间:
2020年01月11日
小区:南湖意境 面积:290㎡ 户型:复式 风格:现代简约风格
设计说明
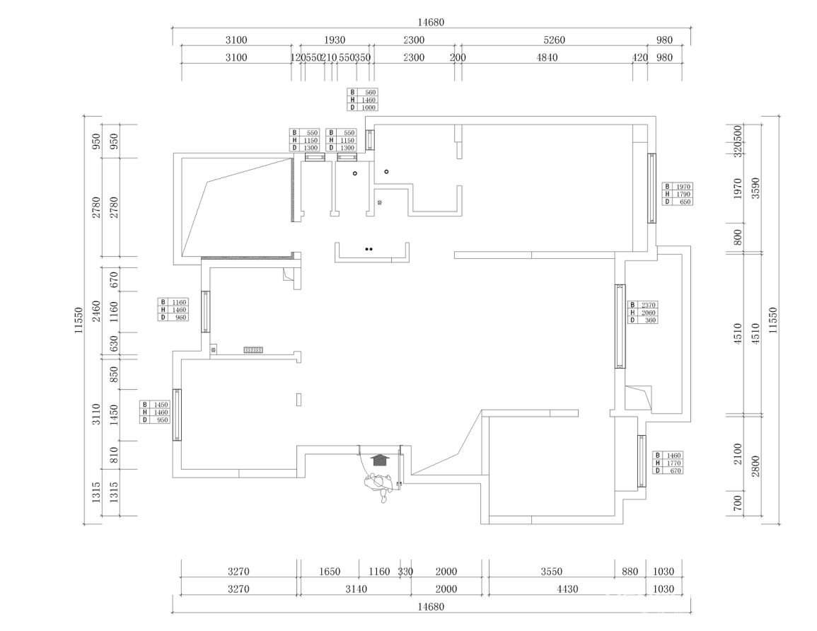
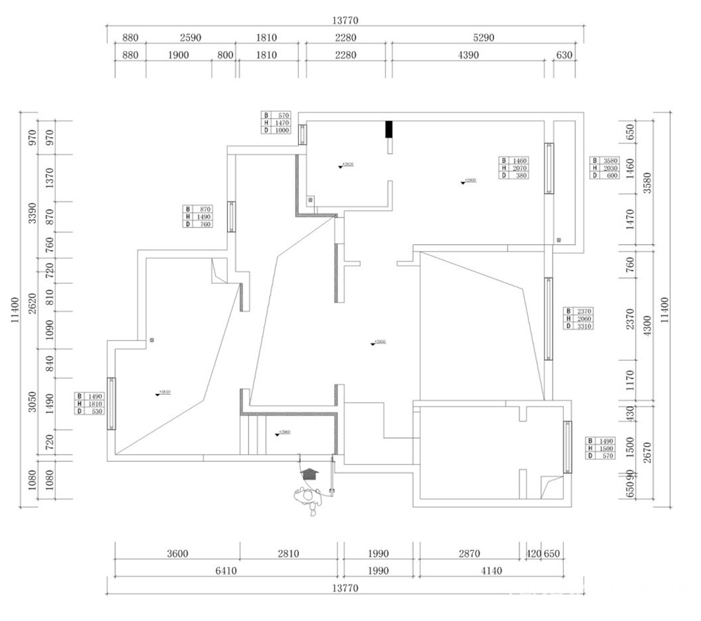
本套装修案例为复式。四室三厅一厨三卫。
原始结构优缺点:南北通透,采光特别好。房屋内梁较多厨房较小也是难点。
改造方案:精算每个空间的尺寸,合理的安排每个空间,,突出户型的品质。
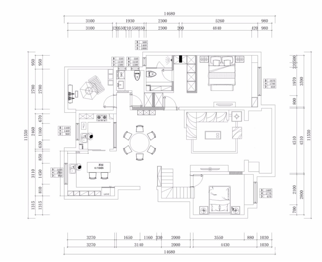
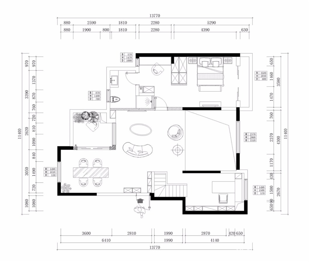
户型图

厨房

卧室


休闲区

餐厅


客厅






书房





京公安网备11010502040911