90㎡二居新中式风格国熙台
发布时间:
2020年01月09日
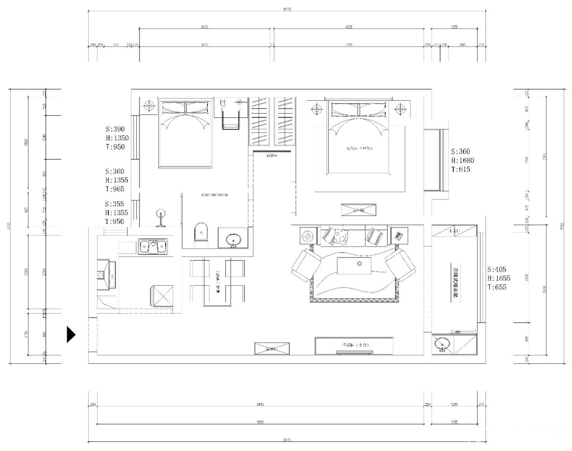
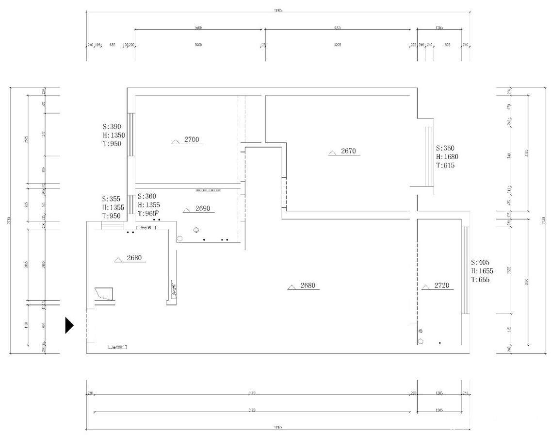
小区:国熙台 面积:90㎡ 户型:二居 风格:新中式风格
设计说明
中式风格是中国5000年历史沉底下来的产物,含蓄优雅,格调高雅,正如中国优秀传统文化一般迷人。 而新中式诞生于中国传统文化复兴的新时期,摒弃了中式风格固有的刻板、老气,在古典的基础上融合了现代特色,设计也更加符合大众的需求。
新中式风格非常讲究空间的层次感,似断非断,似隔非隔,屏风就像是一位含蓄的少女一样,让人忍不住轻挽面纱,细琢其容。
新中式风格中的家具:大多是古典家具或者是现代家具与古典家具想结合。
家具的颜色:主要是以深色为主,有深厚沉稳的底蕴。
装饰造型:主要采用硬朗简洁的直线条,空间具有层次感。既使得中式家具古典、质朴的内涵显现,又符合现代人追求的时尚感、实用性。
在室内设计中,一贯追求照搬古代设计往往效果不尽如人意,更要注重加入现代元素。现代技术中有很多新型材料,就可以善加利用进去。另外在设计中也可以把主人的个人喜好、品味等也加入进去。既满足现代人居住的要求,迎合中式家具的设计风格。
在所有室内设计中风格搭配都尤为重要,新中式装修比较注重古典古香的基调、家具与装饰的搭配。家中的古旧的老家具要善加利用,红木的家具、太师椅、有雕饰的装饰品以及灯光等等都可以增添新中式的原汁原味。上文简单地对新中式设计说明三大内容进行了介绍,可以看出新中式风格与传统中式风格的区别,在现代中式风格设计中要注意很多要点,还有就是家具装饰与总体风格的一贯融合。
客厅
















京公安网备11010502040911