160㎡四居欧式风格曲江金水湾
发布时间:
2020年01月09日
小区:曲江金水湾 面积:160㎡ 户型:四居 风格:欧式风格
设计说明
空间开阔、窗明几净的会客厅。沉稳的皮质沙发搭配质地清晰的背景墙,阳光透过柔纱窗帘轻拂在会客厅内,宾客与屋主得以细语交谈,宾主尽欢。
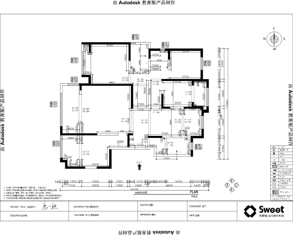
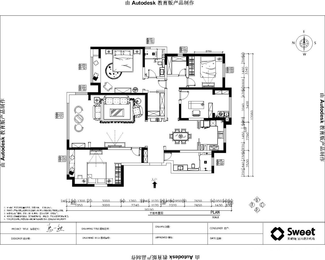
户型图

客厅




玄关


餐厅

卧室

空间开阔、窗明几净的会客厅。沉稳的皮质沙发搭配质地清晰的背景墙,阳光透过柔纱窗帘轻拂在会客厅内,宾客与屋主得以细语交谈,宾主尽欢。








