140㎡三居简欧风格东方天澍
发布时间:
2020年01月08日
小区:东方天澍 面积:140㎡ 户型:三居 风格:简欧风格
设计说明
简欧风格就是简化了的欧式装修风格。也是目前住宅别墅装修最流行的风格。简欧风格更多的表现为实用性和多元化。简欧家具包括床、电视柜、书柜、衣柜、橱柜等等都与众不同,营造出日常居家不同的感觉。
它的设计风格其实是经过改良的古典欧式主义风格。欧洲文化丰富的艺术底蕴,开放、创新的设计思 想及其尊贵的姿容,一直以来颇受众人喜爱与追求。简欧风格从简单到繁杂、从整体到局部,精雕细琢,镶花刻 金都给人一丝不苟的印象。一方面保留了材质、色彩的大 致风格,仍然可以很强烈地感受传统的历史痕迹与浑厚的 文化底蕴,同时又摒弃了过于复杂的肌理和装饰,简化了线条。
家具的选择,与硬装修上的欧式细节应该是相称的,选择深色以及非常西化的造型的平安家具,与大的氛围和基调相和谐。
灯具可以选择一些外形线条柔和些或者光线柔和的灯,像铁艺枝灯是不错的选择,有一点造型、有一点朴拙。
简欧风格装修的底色大多采用白色、淡色为主,家具则是白色或深色都可以,但是要成系列,风格统一。同时,一些布艺的面料和质感很重要,比如丝质面料是会显得比较高贵的。
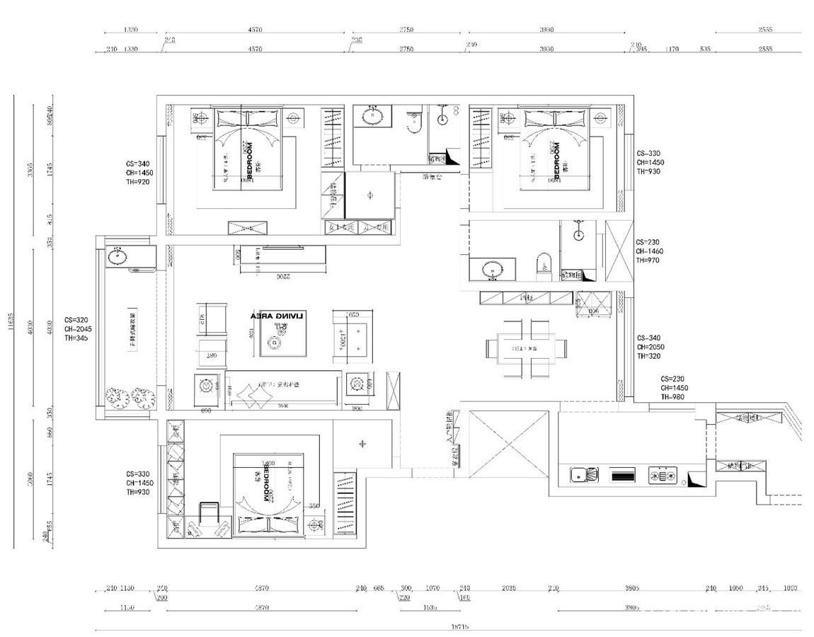
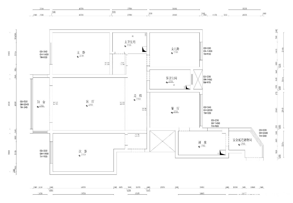
户型图

客厅












京公安网备11010502040911