221㎡别墅现代简约风格中骏柏景湾
发布时间:
2020年01月06日
小区:中骏柏景湾 面积:221㎡ 户型:别墅 风格:现代简约风格
设计说明
本案以现代主义设计理念为主线叙事,串联起地域精神,共同演绎人文思想。三者综合塑造下的居住空间,在兼顾功能和美学的同时,如有呼吸般回应着人和场所。极致和谐的空间美感不仅停留在视觉表象,居者居于其中与空间产生关联时,物理空间渐渐嬗变为观念空间,「归属感」带给居者一种安定的力量。
线性相关的数理概念应用于设计语境中,是指在一套行为模式的背后,设计师往往可还原居者的日常生活动线,完成动线摹拟,随之空间尺度的推敲显得尤为重要。空间的美学是一种「整体性」美学,物与物之间偏差分毫,落笔便可能转化为居者与空间的心理距离。
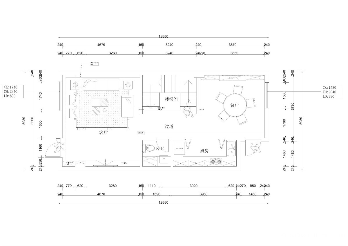
户型图

客厅








卧室


卫生间

休闲区

厨房

餐厅





京公安网备11010502040911