80㎡二居其他风荷园
发布时间:
2020年01月04日
小区:风荷园 面积:80㎡ 户型:二居 风格:其他
设计说明
返璞归真、与自然和谐统一"是日式风格的核心,也表现日本人讲究禅意,对淡泊宁静,清新脱俗生活的追求。擅长表现空间的流动与分隔,流动则为一室,分隔则分几个功能空间,空间中总能让人静静地思考,禅意无穷。
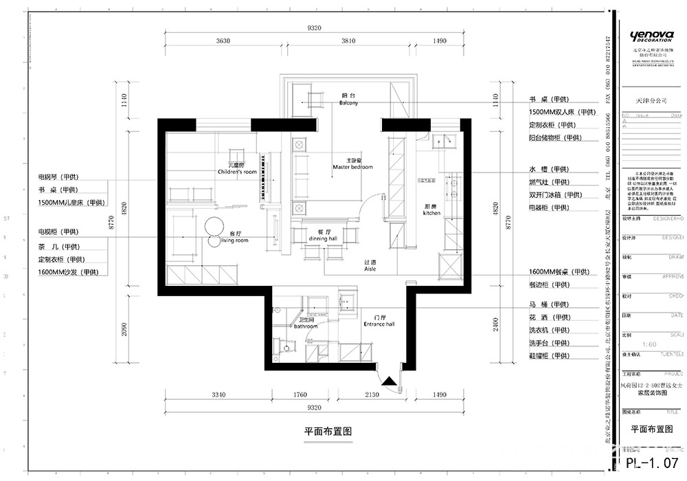
户型图

客厅


餐厅

厨房

玄关

卧室


卫生间





京公安网备11010502040911