113㎡三居美式风格融创中心
发布时间:
2020年01月04日
小区:融创中心 面积:113㎡ 户型:三居 风格:美式风格
设计说明
此房间整体设计风格为美式风格,美式风格以宽大,舒适而著称。造就其自在随意的不羁生活方式,没有太多矫揉造作的修饰与约束,不经意间成就一种休闲式浪漫。本案整体色调为暖色,用深木色压住空间,使空间庄重严肃,在客厅搭配绿色沙发来中和过暖的整体空间,合理搭配色调并不跳脱。卧室跟随整体色调,暖色的搭配使人进入卧室空间有放松舒适感,惬意的享受生活。厨房空间较大,处理成开放式厨房,使料理变得更有趣味,厨房空间大,将餐桌融入厨房也并不显得拥挤,使用餐的人与料理的人更好的交流。
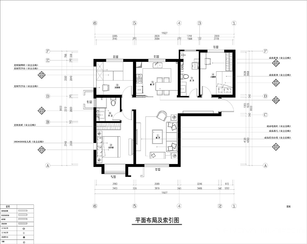
户型图

客厅





餐厅

卧室





京公安网备11010502040911