125㎡三居美式风格世茂锦绣长江
发布时间:
2019年12月09日
小区:世茂锦绣长江 面积:125㎡ 户型:三居 风格:美式风格
设计说明
本案既要体现美式风格独一无二的休闲与自由,又要对美式风格进行一种突破,用简单的手法打造一种浪漫与温馨。玄关与客餐厅以复古的地面拼花区分开,进入门厅后,以弧形吊顶区分客餐厅,用石膏线做造型,更有轮廓感。圆形餐桌与吊顶相呼应,不强硬的割分空间却明确划分了界限。流畅的石膏线条中和了拱形门洞的复古感,配以绿植增添了自然气息,模糊室内室外界限。整体空间采用弱对比颜色处理,加以少量深色沉稳空间,使家人能长时间安静的生活在家里,隔绝一帘之外的闹市。阳台配上轻质薄纱,摇曳灵动,大好风光一览无遗,旁边放置一把厚实温暖的休闲椅,让人尽享休闲愉悦时光。采用各种巧妙的设计手法,在材质、层次上区分空间,足以彰显设计师的设计能力和灵思妙动。
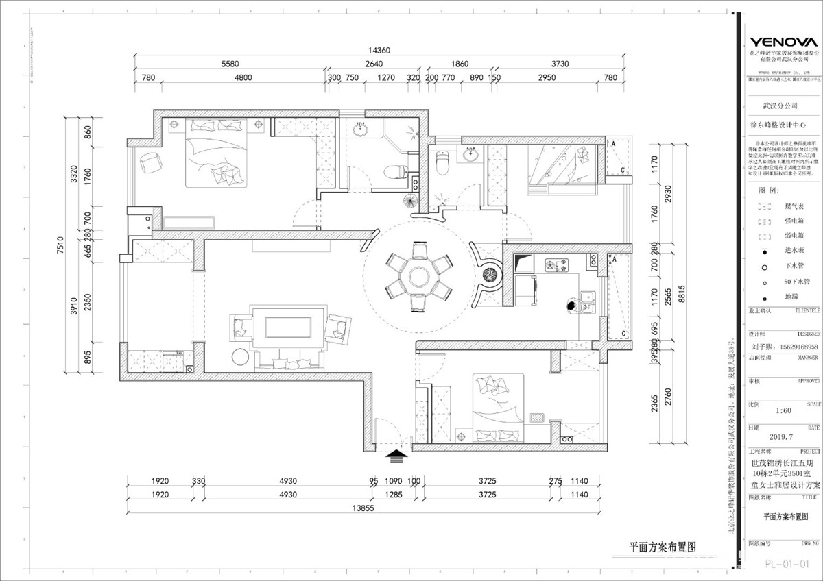
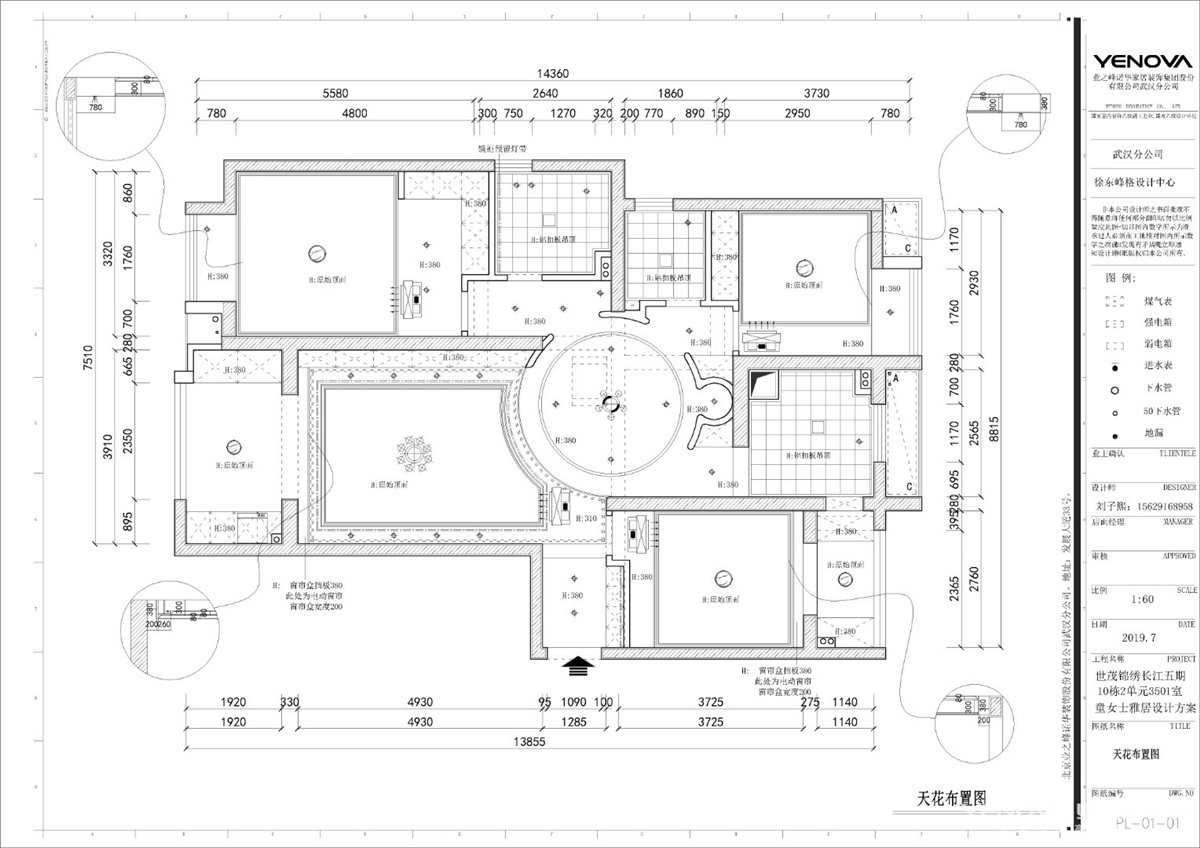
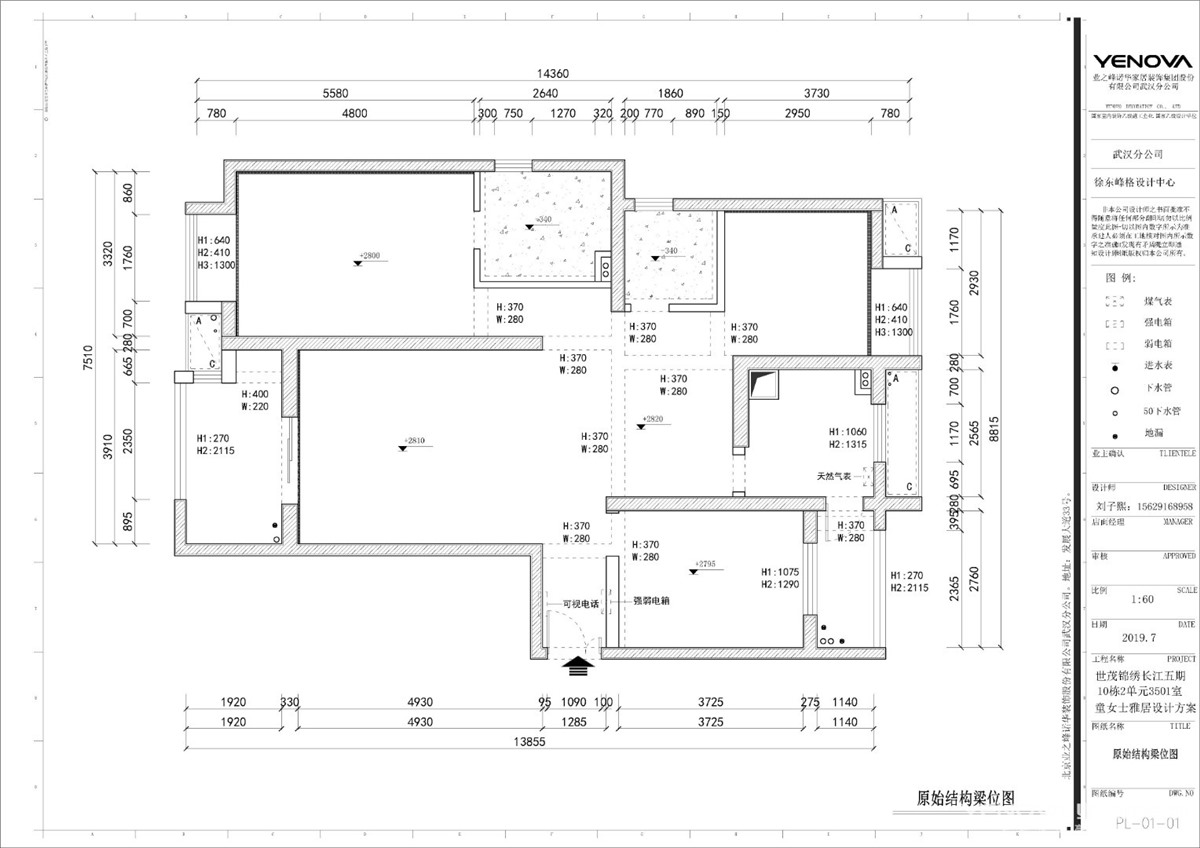
户型图

客厅





餐厅





京公安网备11010502040911