80㎡二居北欧风格晖苑花园
发布时间:
2019年12月05日
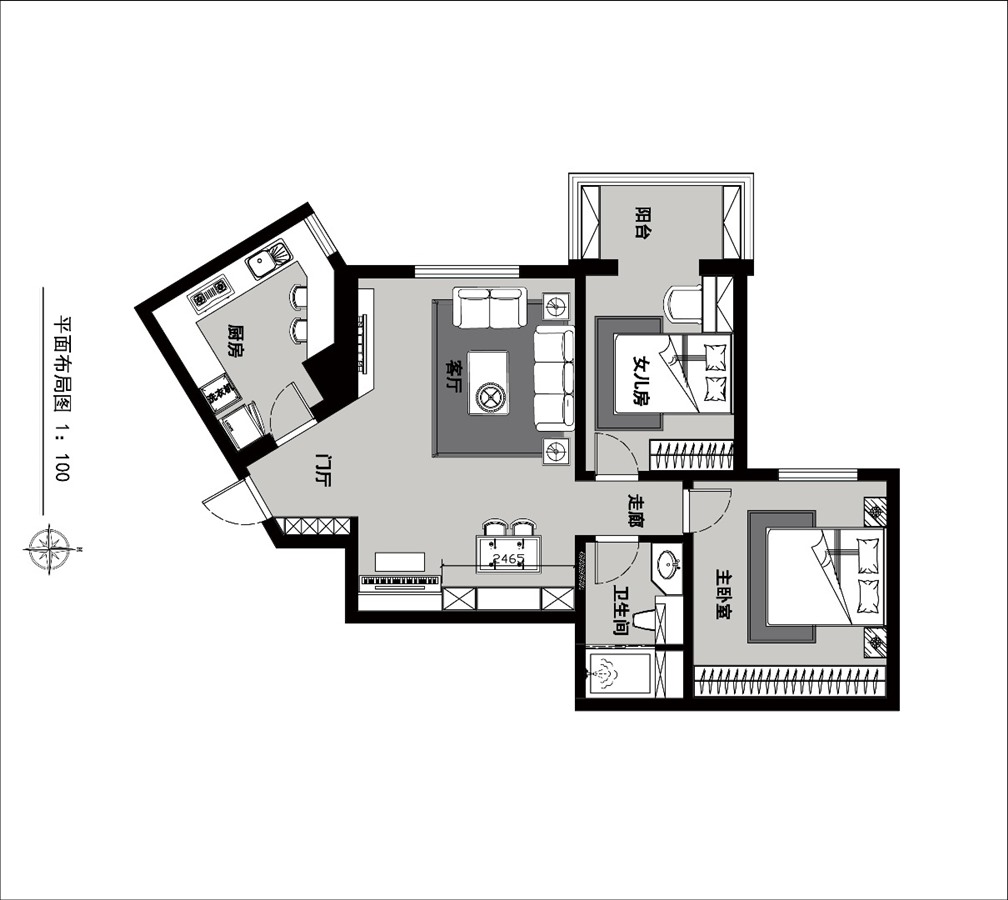
小区:晖苑花园 面积:80㎡ 户型:二居 风格:北欧风格
设计说明
施少芬说:一个有趣的灵魂,能够发现生活的别有意味,有热爱的色彩、阳光、生活、兴趣,万物都按照着自己的生存方式活着,即便是偏居一隅却也始终如一随心不羁,编织出属于他自己的幻想曲。
艺术,不在生活之上,而在生活之中。我们创造空间艺术,让空间有灵性,与人有共鸣。
户型图

客厅




卧室

卫生间

儿童房





京公安网备11010502040911