150㎡三居现代简约风格西工大家属院
发布时间:
2019年11月20日
小区:西工大家属院 面积:150㎡ 户型:三居 风格:现代简约风格
设计说明
此方案定位为现代简约风格,入户的整面鞋柜满足了功能性,对墙选用了一副3D画,让空间不显狭小。客厅电视墙设置了整面的电视柜,增加了储物空间,简约的沙发和茶几让空间有了放大。餐桌底座的金属材质与玻璃隔断的相撞,带入了一丝轻奢感。主卧的色彩选用白色和浅灰,加入一些深色的点缀,让空间明亮又不缺质感。小孩房增加了宽敞的书桌和柜子,满足了孩子的学习空间。
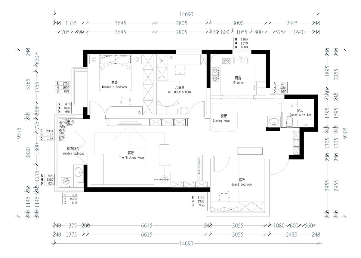
户型图

卫生间

客厅




餐厅

玄关

卧室

儿童房





京公安网备11010502040911