214㎡四居现代简约风格尚景新世界
发布时间:
2019年11月20日
小区:尚景新世界 面积:214㎡ 户型:四居 风格:现代简约风格
设计说明
港式轻奢风格相比于浓厚的港式风格,不那么的烈,算是家居风格当中比较低调的一种了。港式轻奢风格特点:港式轻奢,以低调和质感取胜,多运用金属、大理石、镜面等元素,简洁的设计、利落的线条、优雅的软装,低调奢华与精致优雅共生,从不哗众取宠,却自带焦点光环。
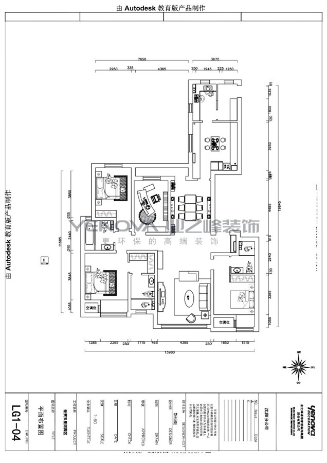
户型图

客厅





玄关


餐厅


厨房

卫生间





京公安网备11010502040911