95㎡三居新中式风格南湖世纪
发布时间:
2019年11月19日
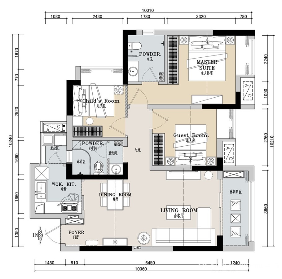
小区:南湖世纪 面积:95㎡ 户型:三居 风格:新中式风格
设计说明
本案定位为养老房,业主夫妇二人明年退休,家里还有一位年长的婆婆,儿子在外工作,过年才回家;结合到这样的家庭成员构成,设计了如下的方案。本方案的设计重心以业主的需求为主,同时也要兼顾到家里年长婆婆的使用感受;女业主喜欢现代风格,男业主又喜欢中式元素,结合两人的需求,设计了现代中式的风格。现代风格的家具搭配到墙面的上中式风格的元素,在营造出简单精致氛围的同时,又让整个空间充满文化的气息。保证效果的前提下,并没有摒弃实用和老人安全防护的考虑。整个空间无不散发着业主的品味与内涵,这正是业主追求的的生活品质。
户型图

客厅










京公安网备11010502040911