167㎡三居美式风格东南智汇城
发布时间:
2019年11月13日
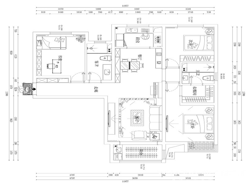
小区:东南智汇城 面积:167㎡ 户型:三居 风格:美式风格
设计说明
美式轻奢风格低调奢华风格注重硬装修手法的简洁,但也并不像一般的简约风格那样随意。在“低调奢华风格”的空间里,看似简洁朴素的外表之下却常常折射出一种隐藏着的贵族气质,这种气质大多数通过家具,壁纸,纺织品,皮毛等软装元素而来。硬装修的简洁更有利于衬托出具有品质的家具和软装产品。
户型图

客厅





卧室



玄关

餐厅





京公安网备11010502040911