127㎡三居北欧风格东南智汇城
发布时间:
2019年11月13日
小区:东南智汇城 面积:127㎡ 户型:三居 风格:北欧风格
设计说明
本案采用北欧为主的装饰风格,北欧风格的简洁被推到极致。反映在家庭方面,就是室内的顶,墙,地六个面完全不用纹样赫图案装饰,只用线条,色块来区分点缀。
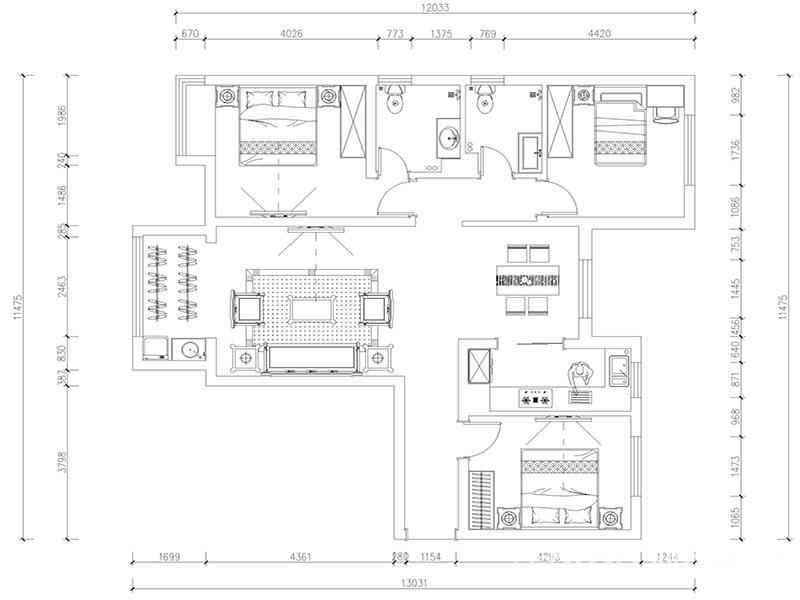
户型图

阳台

卧室

客厅



餐厅

本案采用北欧为主的装饰风格,北欧风格的简洁被推到极致。反映在家庭方面,就是室内的顶,墙,地六个面完全不用纹样赫图案装饰,只用线条,色块来区分点缀。






