107㎡三居欧式风格碧景园
发布时间:
2019年11月13日
小区:碧景园 面积:107㎡ 户型:三居 风格:欧式风格
设计说明
在简欧风格中无论从简单到复杂,还是从颜色到质感都是采用性价比最高的,在住房的装修过程中不能太过于艺术化,也不需要太多华而不实的装修点缀,所以简欧风格多了一些实用的装修。注重空间的合理规划,也注重典雅高贵的体现。带着一丝小资情调,让生活充满了情趣感。
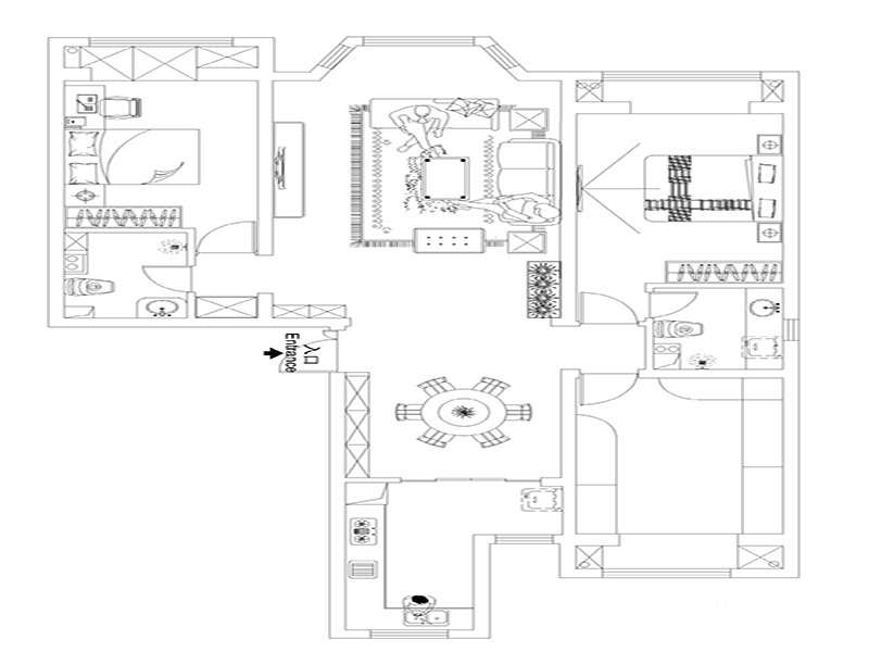
户型图

餐厅


卧室


客厅




玄关





京公安网备11010502040911