128㎡三居北欧风格中国中铁世纪金桥
发布时间:
2019年11月11日
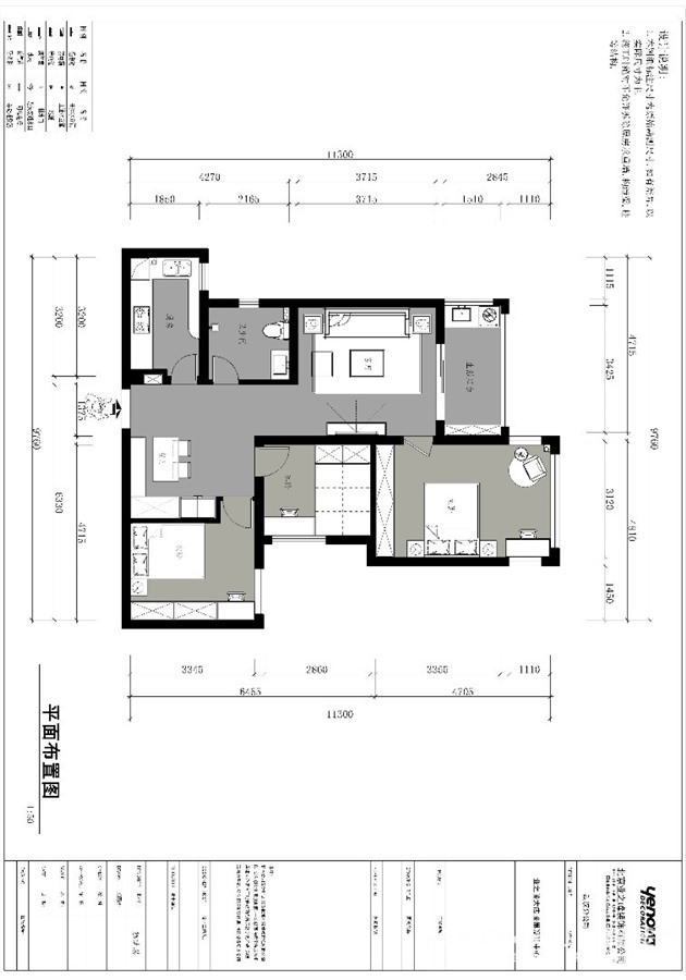
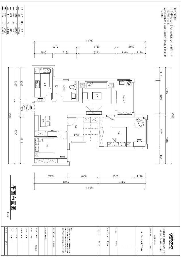
小区:中国中铁世纪金桥 面积:128㎡ 户型:三居 风格:北欧风格
设计说明
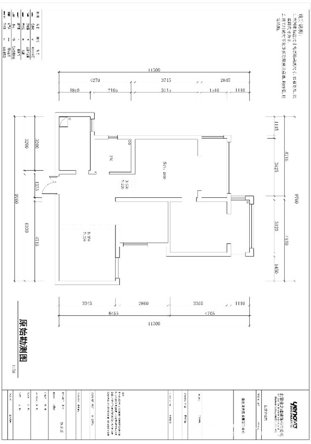
设计说明:这套户型相对来说比较通透,除了餐厅这一块,其他的地方采光都很好,原结构没有什么不合理的地方,所以没有对结构做一些没必要的修改。
由于厨房空间有限,就将屋主已买的双开门冰箱挪到了外面,在保证次卧使用的情况下占用了一点次卧的空间,很好的容纳了冰箱和储物柜,因为有两个阳台,所以保留了客厅的阳台,当作生活阳台,满足储物和日常晾晒,主卧的阳台就扩进了房间里,空间更大,这样男主看书喝茶、女主化妆的地方都有了。
因为屋主喜欢北欧风格,由于局部采光问题,在整体的色调上浅色偏多,主色调是灰蓝和米灰,比较清新,再用暖色调软装点缀,又给空间增添了温馨的感觉。
客厅











京公安网备11010502040911