116㎡二居北欧风格瑞南紫郡
发布时间:
2019年11月10日
小区:瑞南紫郡 面积:116㎡ 户型:二居 风格:北欧风格
设计说明
年经的我们,都喜欢把自己的家建设的温馨浪漫、具有时尚气息。
我们喜欢将家装修成北欧风格、现代简约、地中海、美式田园等等自己喜欢的风格。
回到家,可以尽情的放松、享受一天难得的休憩时光。
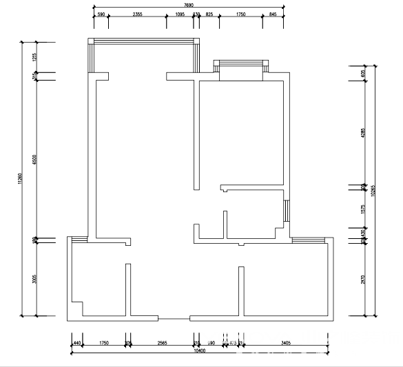
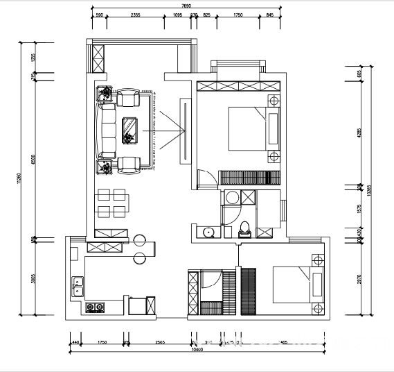
户型图

客厅





卧室


卫生间

餐厅

年经的我们,都喜欢把自己的家建设的温馨浪漫、具有时尚气息。
我们喜欢将家装修成北欧风格、现代简约、地中海、美式田园等等自己喜欢的风格。
回到家,可以尽情的放松、享受一天难得的休憩时光。









