180㎡四居欧式风格碧桂园爱丁堡
发布时间:
2019年11月10日
小区:碧桂园爱丁堡 面积:180㎡ 户型:四居 风格:欧式风格
设计说明
将浪漫、奢华与高雅融合入这套欧式风格案例中,古典元素的应用经典而具韵味,而时尚轻奢则赋予设计别样的魅力。
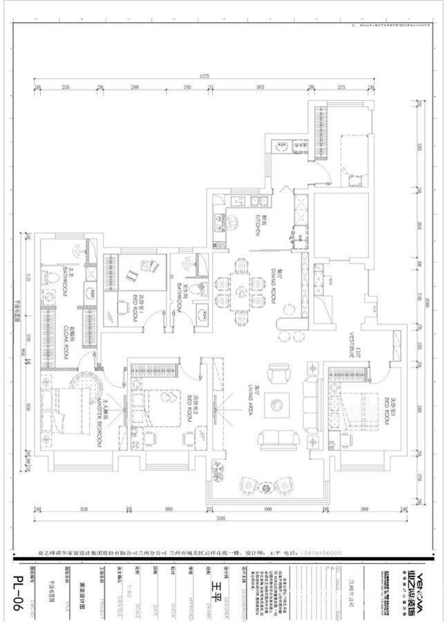
户型图

客厅


卫生间

书房

衣帽间

儿童房

卧室

厨房

餐厅

将浪漫、奢华与高雅融合入这套欧式风格案例中,古典元素的应用经典而具韵味,而时尚轻奢则赋予设计别样的魅力。









