116㎡三居现代简约风格招商公园1872
发布时间:
2019年11月02日
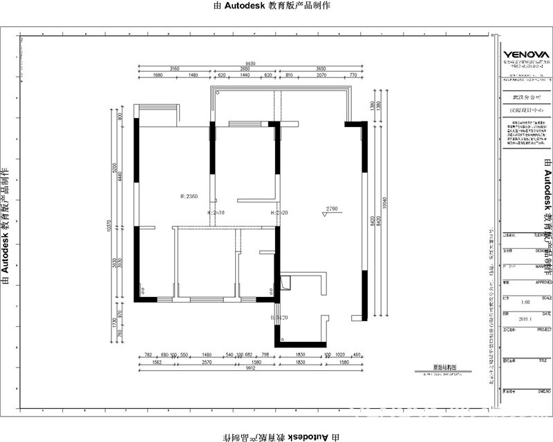
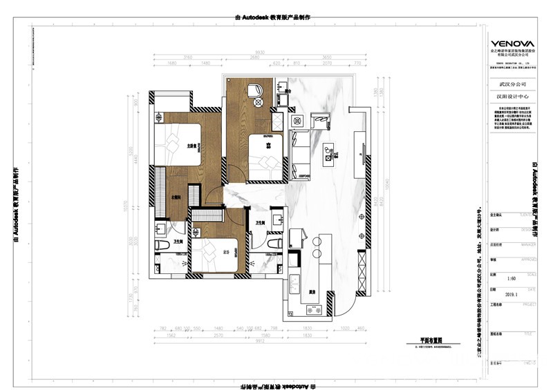
小区:招商公园1872 面积:116㎡ 户型:三居 风格:现代简约风格
设计说明
此户型为三室两厅一厨两卫,客户是三口之家的人员结构,考虑到客户喜欢喝茶,结交朋友,有一群茶友,所以在平面功能设计上就考虑到这个位置,将其中一间面积稍小的房间的阳台打通扩到茶室,再放置一组沙发,,既可以休闲时光喝喝茶又可以朋友过来聊天休息。
整个设计风格我们定位为现代简约风格,墙面多运用灰白色和乳白色作为色彩基调,低调内涵,在门的设计上设计师特意用谷厂门,显得整体与众不同,偏暖黄色地板让整个家里的色彩搭配更贴近地表的感觉,沙发和餐桌椅在选择上就多选用色彩比较明亮的鹅黄色和青绿色,清新自然,贴近生活,,在门口的鞋柜设计上,设计师还是比较用心的,设计了换鞋凳和挂衣服的位置,这样业主一回家就可以换鞋,脱下沉重的外衣,让一天的紧张与劳累得到了放松,门厅的穿衣镜则是考虑到业主在早上出门上班的时候可以检查一下自己的穿着打扮是否搭配整洁,非常方便实用。顶面吊顶做的比较简单,主要运用石膏板和筒灯加以装饰,用筒灯的点光源来烘托整个家居氛围,更温馨,更符合我们开始简洁大方主题的初衷。
户型图

客厅







卫生间

卧室





京公安网备11010502040911