1000㎡别墅欧式风格御龙湾
发布时间:
2019年10月18日
小区:御龙湾 面积:1000㎡ 户型:别墅 风格:欧式风格
设计说明
设计是一个发现美和创造美的工作,室内设计一定要用心设计,从总体风格到细部装饰都要结合实际,反复推敲,反复构思,反复比较,比如一块宝石需要精雕细刻一样,创造出精品,本方案通过各种元素的运用搭配灯光,窗帘等营造出一个舒适、典雅、大方的空间。
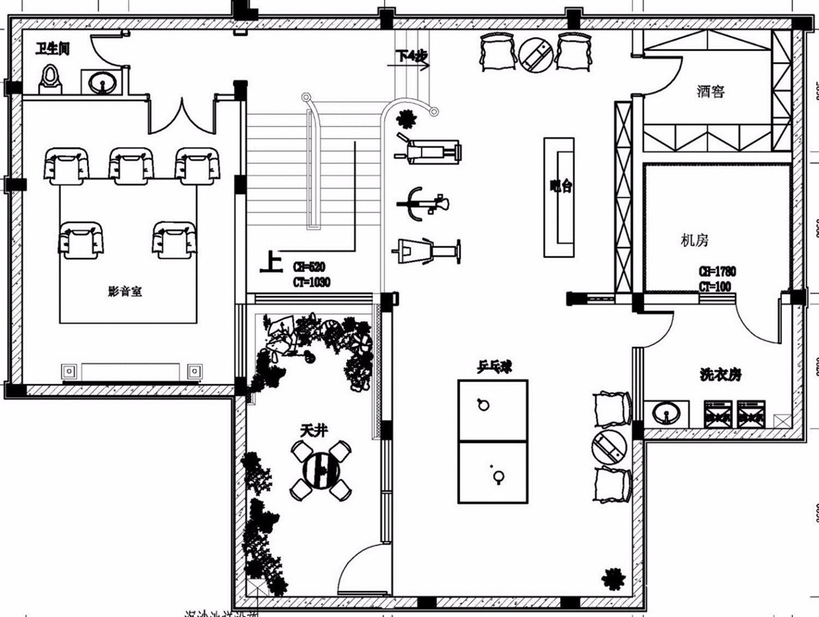
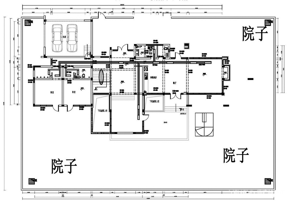
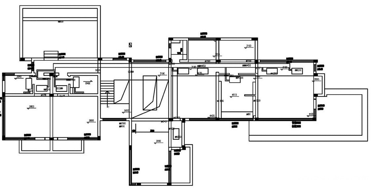
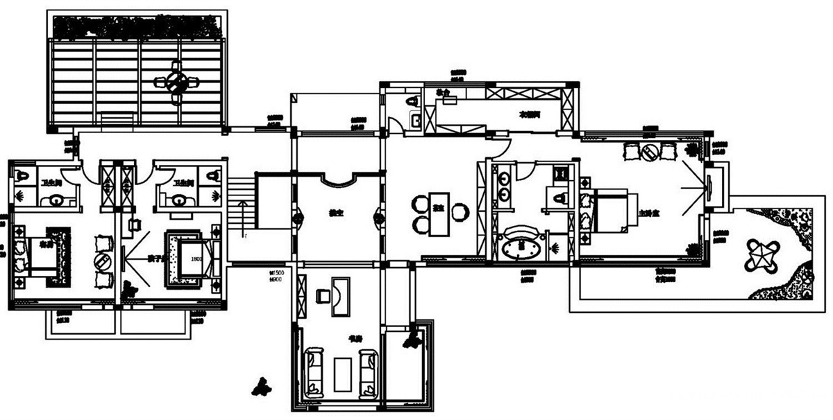
户型图

客厅













休闲区







楼梯





卧室



卫生间


餐厅




玄关







京公安网备11010502040911