875㎡别墅新中式风格龙腾阁
发布时间:
2019年09月25日
小区:龙腾阁 面积:875㎡ 户型:别墅 风格:新中式风格
设计说明
本案定位于中式风格,以胡桃木作为主色调,配以中国黄点缀,局部镂空半透设计,为沉稳的空间增添一分活力。大量使用中式雕花元素,将中国工匠精湛工艺发挥淋漓尽致。书房兼画室的空间与客厅大面积玻璃隔断,使得空间更加通透,大气。
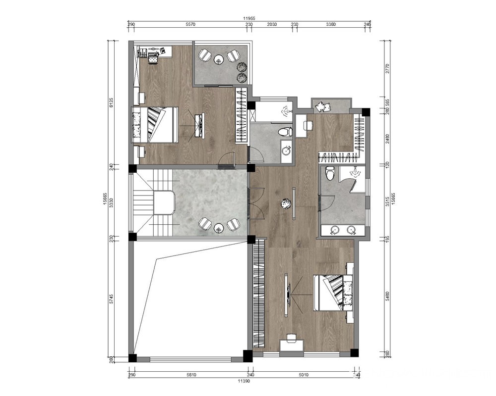
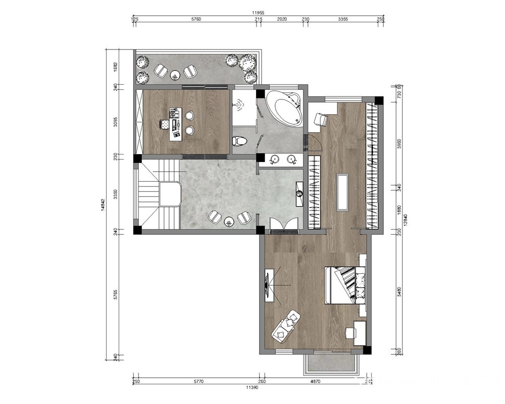
户型图

客厅




书房

卧室





京公安网备11010502040911