177㎡别墅新中式风格保利学府城
发布时间:
2019年09月25日
小区:保利学府城 面积:177㎡ 户型:别墅 风格:新中式风格
设计说明
本案是别墅户型,前期跟客户长时间的沟通,结合客户的喜好,最终将本案的风格定位于新中式风格。新中式风格应遵循自然简洁和理性的规则,比例均匀、形式新颖,内部结构严密紧凑、空间穿插有序、围护体各界面要素的虚实构成非常的明显,另外通过虚实互换的空间形象,取得局部与整个空间的和谐。强调空间的完整性和高贵、典雅感。在于客户的沟通中,了解到客户需要足够的储物空间和休闲娱乐空间。所以在本案的设计中,将负一层设计成储物室,夹层设计成放映室,满足了客户对储物和娱乐的要求。一层原户型结构存在入户缺乏鞋柜区域,而且开门视线一览无余,缺乏隐私感。所以在结构改造上,将入户门外移,将原入户门封住,借此来营造出玄关的感觉,又增加了鞋柜区域。二层的空间,了解到客户家的常住人口,所以全部设计成卧室,满足客户的需求。三层主要用于客户的私人空间,满足客户对衣帽间和书房的要求。设计中多采用木线条和木饰面装饰,提升空间层次感。勾勒出来客户对“家”的感觉。
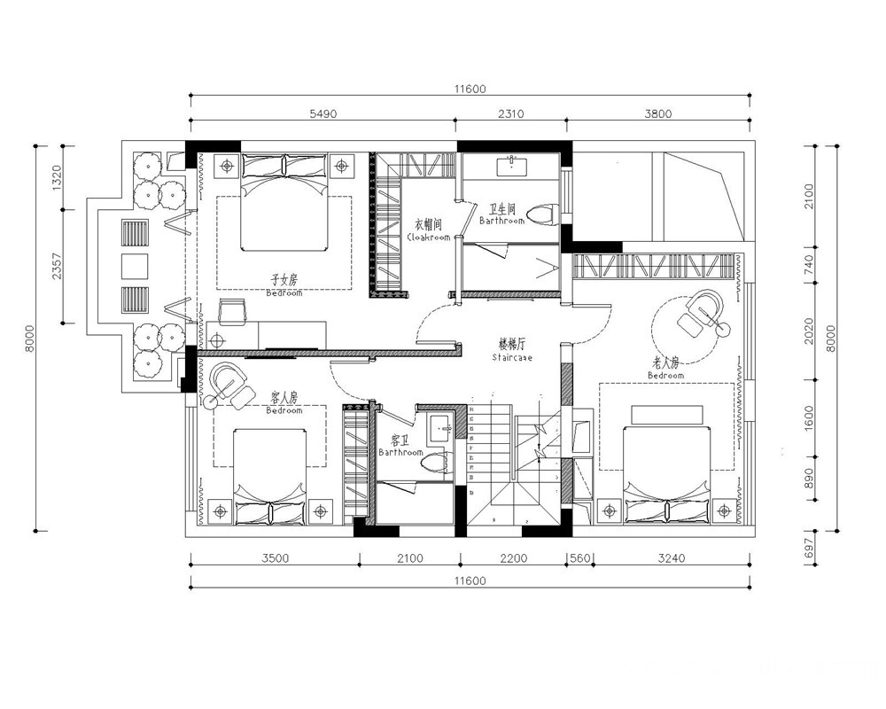
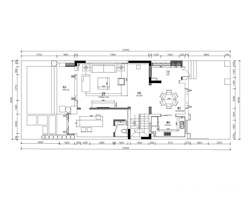
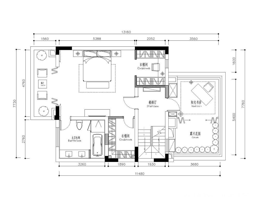
户型图

客厅





玄关

休闲区

餐厅

卧室





京公安网备11010502040911