299㎡别墅美式风格廊桥水乡
发布时间:
2019年09月24日
小区:廊桥水乡 面积:299㎡ 户型:别墅 风格:美式风格
设计说明
此设计方案风格定位为地中海美式。本案的设计重点是地中海的洒脱感,我们在客厅的墙面设计上以弧形造型为主,加上风格不同的壁纸以及挂画,营造出地中海的感觉,给人一种身在异国的感觉,顶面设计上运用到了木质假梁,使在整个空间更加的富有层次感,色彩方面做了一个区域的划分,比如儿子房用了比较简洁干练的浅色调,主卧和公共区域部分以沉稳厚重的深胡桃木为主再在软装上搭配比较跳跃的颜色,使得每个空间更加的符合业主及其家人个人已经集体的一个生活喜好.
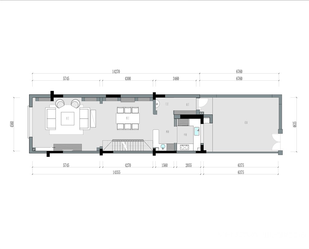
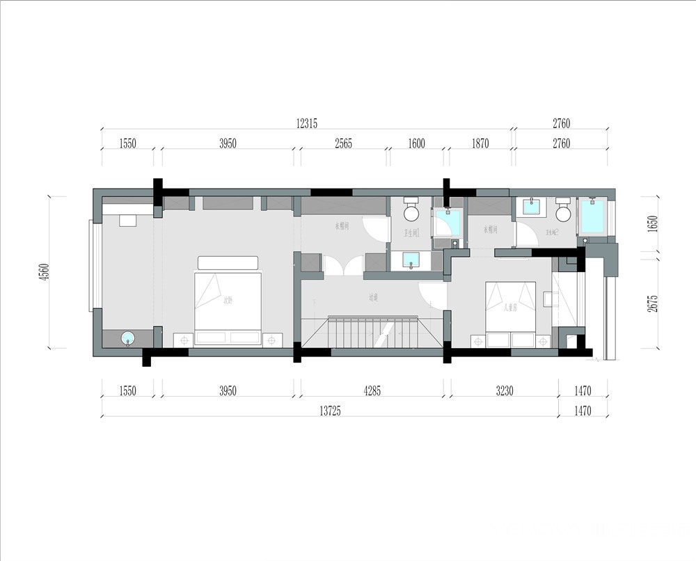
户型图

餐厅

客厅





卧室






京公安网备11010502040911