322㎡别墅现代简约风格保利锦湖林语
发布时间:
2019年09月24日
小区:保利锦湖林语 面积:322㎡ 户型:别墅 风格:现代简约风格
设计说明
此设计方案风格定位为地中海美式。本案的设计重点是地中海的洒脱感,我们在客厅的墙面设计上以弧形造型为主,加上风格不同的壁纸以及挂画,营造出地中海的感觉,给人一种身在异国的感觉,顶面设计上运用到了木质假梁,使在整个空间更加的富有层次感,色彩方面我们家具以深胡桃木为主,墙面配以同色调的浅色,在软装上搭配一些跳跃的颜色,使得整个色彩视觉上稳重的同时又不失趣味.
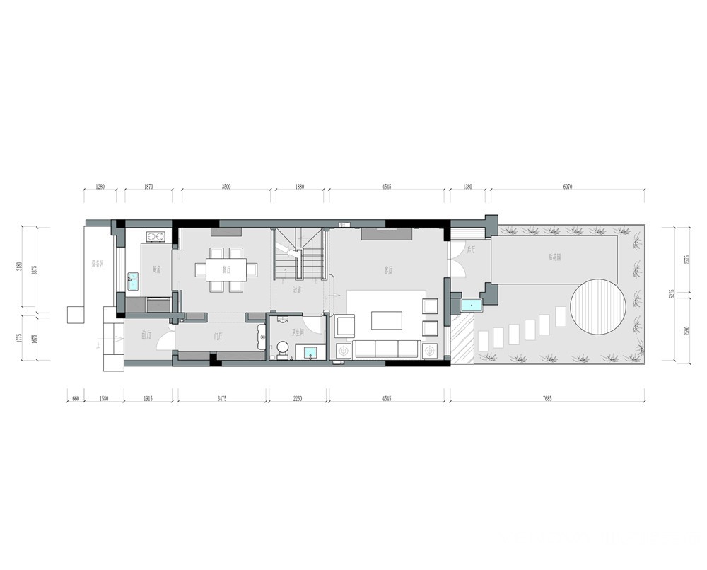
户型图

餐厅

客厅




卧室






京公安网备11010502040911