133㎡三居现代简约风格龙湖紫宸香颂
发布时间:
2019年09月24日
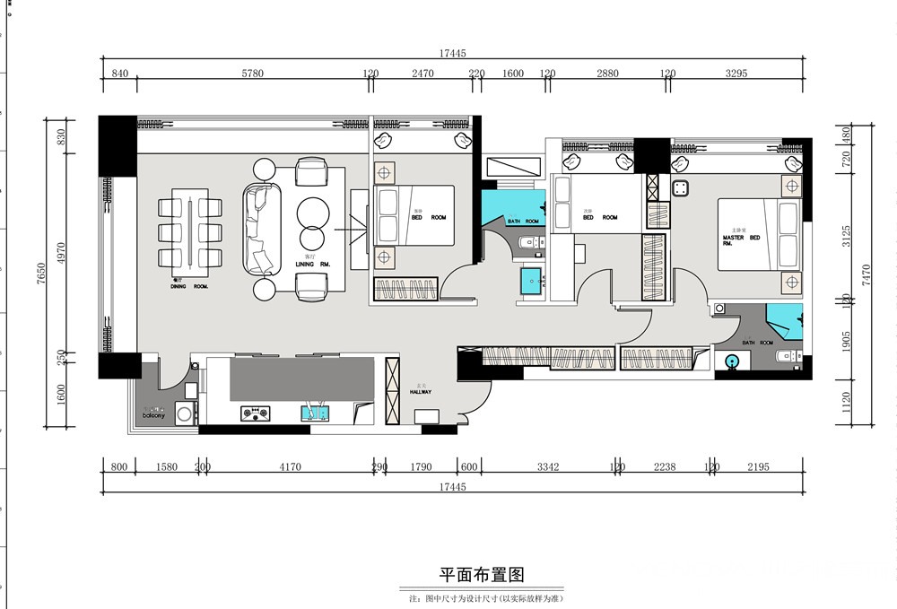
小区:龙湖紫宸香颂 面积:133㎡ 户型:三居 风格:现代简约风格
设计说明
因为客户喜欢简单一点的现代风格,然而现代风格是比较流行的一种风格,追求时尚与潮流,非常注重居室空间的布局与使用功能的完美结合。客户认为无论房间多大,一定要显得宽敞。不需要繁琐的装潢和过多家具,在装饰与布置中最大限度的体现空间与家具的整体协调。
户型图

客厅


卧室





京公安网备11010502040911