450㎡别墅现代简约风格和达玺悦
发布时间:
2019年09月23日
小区:和达玺悦 面积:450㎡ 户型:别墅 风格:现代简约风格
设计说明
本案位于李沧区临近崂山华楼景区,整体空间利用简洁的装饰线条来勾勒造型美感。活力的橙色、清新的蓝绿色、雅致的灰色三大主色汇聚成了现代风格的主旋律;点缀金属元素使空间更是潮流气息满满。
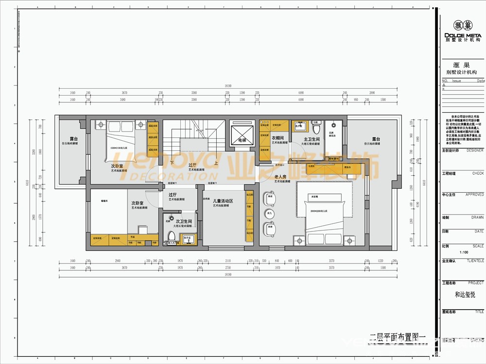
户型图

儿童房

玄关

客厅




餐厅

卧室





京公安网备11010502040911