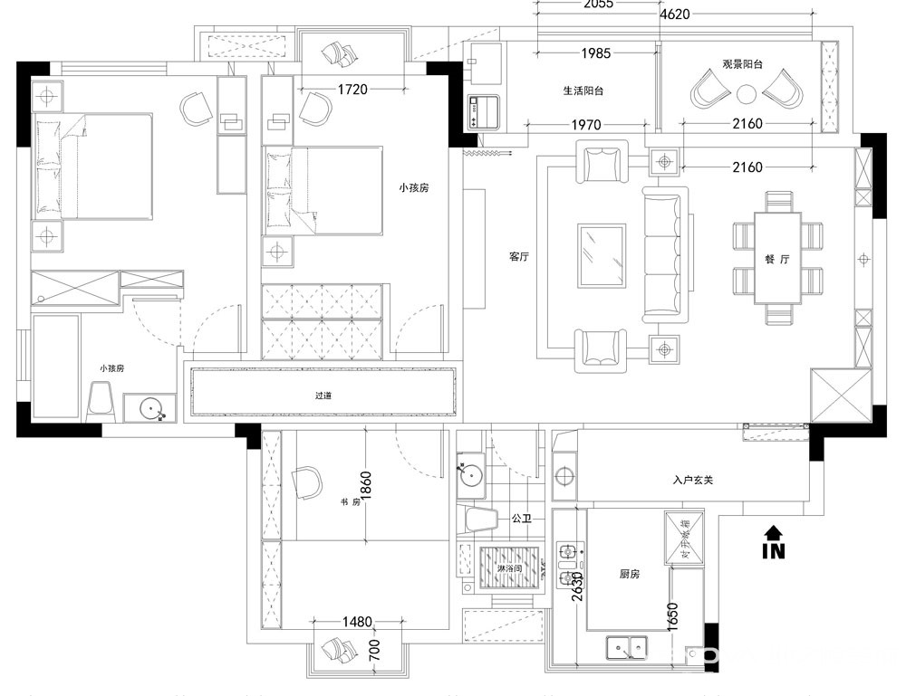
130㎡三居新中式风格绿地悦公馆
发布时间:
2019年09月23日
小区:绿地悦公馆 面积:130㎡ 户型:三居 风格:新中式风格
设计说明
装修热线:0791-86296016,此案例业主喜欢中国风,但不喜纯中式的那种沉闷,经过多次探讨,最后选择了简中风格,整体不是纯粹的中式元素堆砌,而是通过对传统文化的认识,将现代元素和传统元素结合在一起,整体呈现大而不空,厚而不重,虽简化了线条,但仍然可以很强烈地感受传统的历史痕迹与浑厚的文化底蕴的空间,令人感到了舒心的美。
户型图

儿童房

客厅





餐厅

卧室





京公安网备11010502040911