130㎡三居港式风格中海国际社区
发布时间:
2019年09月20日
小区:中海国际社区 面积:130㎡ 户型:三居 风格:港式风格
设计说明
本案为港式风格,讲究直线,从沙发、电视背景墙再到瓷砖的铺列。整体色彩喜用内敛冷色调,黑白灰系列,会让家的档次瞬间提升,而且永不过时。整体主色采用的致简的家具造型,流畅线条设计,搭配的整个本案讲究直线,从沙发、电视背景墙再到瓷砖的铺列。整体色彩喜用内敛冷色调,黑白灰系列,会让家的档次瞬间提升,而且永不过时。整体主色采用的致简的家具造型,流畅线条设计,搭配的整个空间都充斥一种浓浓的摩登气息,着实符合业主追求精致生活的口味。桌椅用稳重的色彩,与整体融合。黑白灰是基础色调,不追求跳跃的色彩,凸显出港式的冷静与深沉本案讲究直线,从沙发、电视背景墙再到瓷砖的铺列。整体色彩喜用内敛冷色调,黑白灰系列,会让家的档次瞬间提升,而且永不过时。整体主色采用的致简的家具造型,流畅线条设计,搭配的整个空间都充斥一种浓浓的摩登气息,着实符合业主追求精致生活的口味。桌椅用稳重的色彩,与整体融合。黑白灰是基础色调,不追求跳跃的色彩,凸显出港式的冷静与深沉空间都充斥一种浓浓的摩登气息,着实符合业主追求精致生活的口味。桌椅用稳重的色彩,与整体融合。黑白灰是基础色调,不追求跳跃的色彩,凸显出港式的冷静与深沉
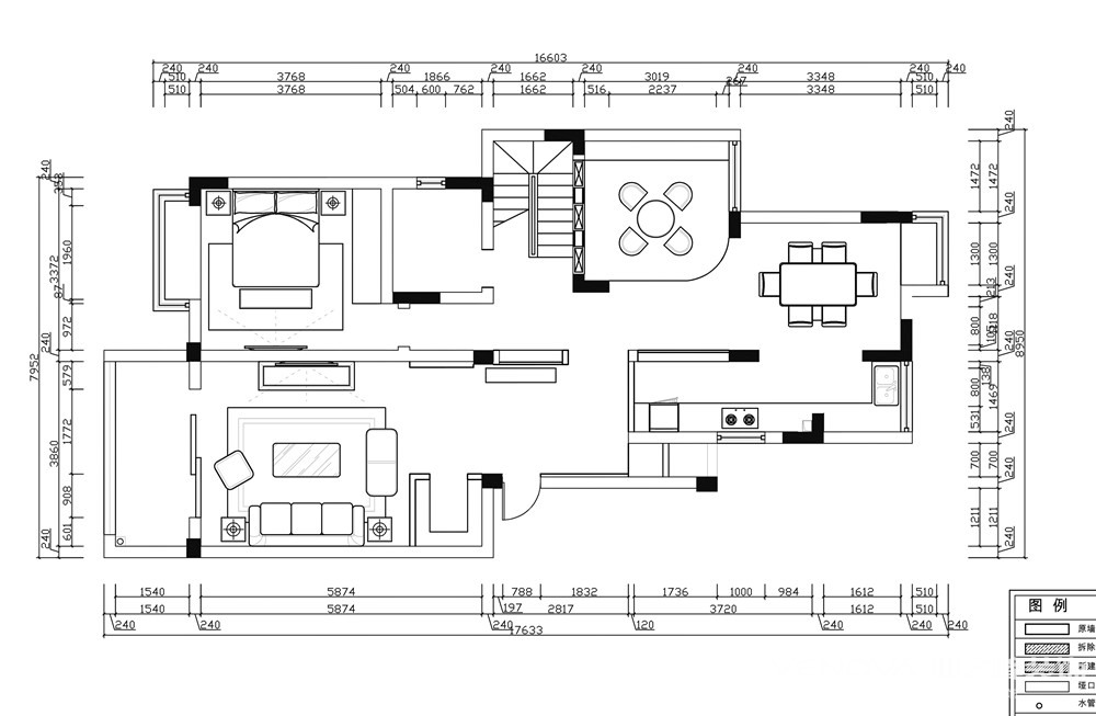
户型图

卧室


客厅






京公安网备11010502040911