115㎡三居新中式风格绿地国际博览城
发布时间:
2019年08月25日
小区:绿地国际博览城 面积:115㎡ 户型:三居 风格:新中式风格
设计说明
咨询电话:0791-86296016本案采用现代新中式风格,将具有传统文化及传统寓意的一些元素符号运用现代的手法在配饰上呈现出来,表现一种沉淀与“释怀”;在空间中细致拿捏着静谧与活跃、朴素与奢华、当代与传统的关系,让古典与现代完美结合,传统与时尚并存。
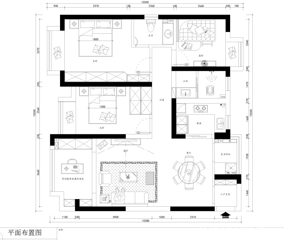
户型图

餐厅


客厅







京公安网备11010502040911