北京
【切换】
整屋案例
家居美图
实景案例
装修现场
装修攻略
无数据
搜索
010-84934479
扫码快速拨号 >
扫码快速拨号
首页
效果图
设计师
装修现场
装修攻略
品质保障
了解业之峰
当前位置:
首页
装修图库
案例相册
220㎡复式现代简约风格鲁德海德堡
发布时间: 2019年08月24日
小区:鲁德海德堡
面积:220㎡
户型:复式
风格:现代简约风格
设计说明
整体色调运用原木和白色做结合,体现家庭温馨氛围。
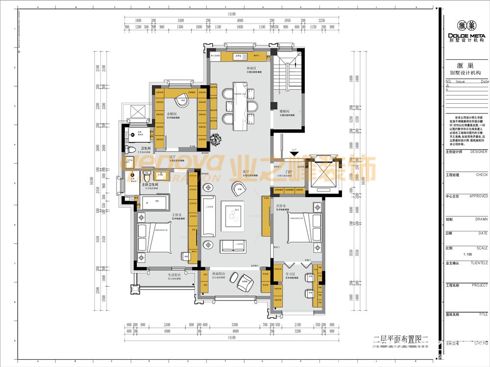
户型图
客厅
玄关
休闲区
卧室
设计说明
户型图
客厅
玄关
休闲区
卧室
本案设计师
谭旭辉
主任设计师
免费咨询
我家装成这样多少钱?
㎡
获取报价
相关案例推荐
215㎡复式现代简约风格金沙古韵
查看详情
145㎡复式现代简约风格世贸璀璨倾城
查看详情
205㎡复式现代简约风格白银铜城人家
查看详情
80㎡复式现代简约风格中海钻石湾
查看详情
376㎡复式现代简约风格林凯城
查看详情
275㎡复式现代简约风格星光社区
查看详情
160㎡复式现代简约风格金地自在城
查看详情
200㎡复式现代简约风格世茂龙湾
查看详情
160㎡复式现代简约风格永威逸阳溪畔
查看详情
40㎡复式现代简约风格华润时光里
查看详情
40㎡复式现代简约风格瑞丰国际公寓
查看详情
65㎡复式现代简约风格保利云上
查看详情
103㎡复式现代简约风格裕阳花园
查看详情
145㎡复式现代简约风格世贸璀璨倾城
查看详情
220㎡复式现代简约风格绿地湖与墅
查看详情
280㎡复式现代简约风格玫瑰园
查看详情
240㎡复式现代简约风格荣美御园
查看详情
160㎡复式现代简约风格海信盟旺世家
查看详情
185㎡复式现代简约风格融创·都会悦山
查看详情
185㎡复式现代简约风格天景雨山前
查看详情
展开
报价计算器
免费量房
免费设计
回到顶部