170㎡三居北欧风格中海国际
发布时间:
2019年08月13日
小区:中海国际 面积:170㎡ 户型:三居 风格:北欧风格
设计说明
色调给人一种安静而又沉稳的感觉,褪去了繁华的色彩。清爽,清透。选用不同浓度的灰色,打破黑白之间的冷硬感,添一分低调大气的宁静感。过重的冷色,太过压抑,过轻的冷色,欠缺质感。太用力会让对方压抑甚至误伤对方,太慢会影响对方的节奏。所谓合适,协调,是细细斟酌后的彼此调试。所幸业主所求明晰,性格随和,并无过多苛求,像是春日暖阳,明媚温和。
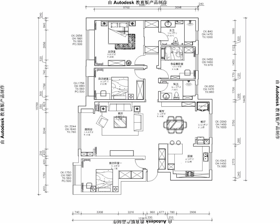
户型图

卧室

餐厅

客厅







京公安网备11010502040911