600㎡别墅新中式风格藁城小区
发布时间:
2019年08月08日
小区:藁城小区 面积:600㎡ 户型:别墅 风格:新中式风格
设计说明
设计师在此融入中国文化底蕴的同时,注入创新时尚元素,达到挥洒自如、一气呵成的艺术境界。
韵味不在于多,而在于精,意图在传递大气优雅的高品质生活方式同时,使居者切实地感受深厚绵长的东方古韵。
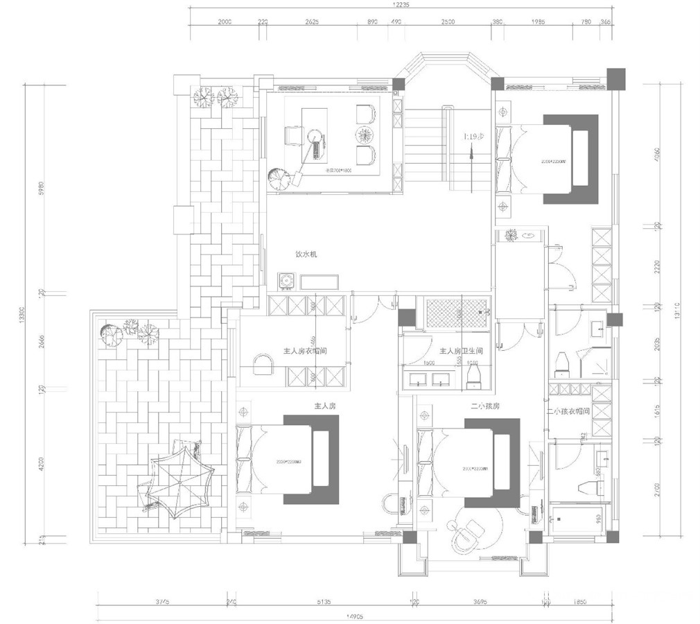
户型图

卧室



客厅





玄关

餐厅

书房





京公安网备11010502040911