115㎡三居北欧风格黑卓原筑
发布时间:
2019年07月25日
小区:黑卓原筑 面积:115㎡ 户型:三居 风格:北欧风格
设计说明
本案设计整体采用现在最为流行的北欧风格,以白色为主色调,再以温暖的原木色和明亮的黄色加以点缀,再搭配质感十足的石材、铁艺和布艺,使空间看上去更加干净温暖,清新自然
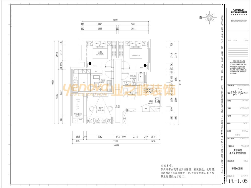
户型图

客厅




卧室


本案设计整体采用现在最为流行的北欧风格,以白色为主色调,再以温暖的原木色和明亮的黄色加以点缀,再搭配质感十足的石材、铁艺和布艺,使空间看上去更加干净温暖,清新自然






