95㎡二居美式风格建邦听海
发布时间:
2019年07月25日
小区:建邦听海 面积:95㎡ 户型:二居 风格:美式风格
设计说明
美式风格,以其简洁,大方,配色稳重,布局舒适而深受人们的喜爱。
本案客厅的整体设计效果显得格外时尚,局部点缀的美式元素十分精简,却恰到好处。灰白的布艺沙发,搭配棕色面的实木茶几和沙发边几,配上布艺单人小沙发,营造出的美式空间格空高雅。电视背景墙中间采用素石膏线条来装饰,壁纸的点缀,搭配美式风格的电视柜,整体的视觉效果十分大气
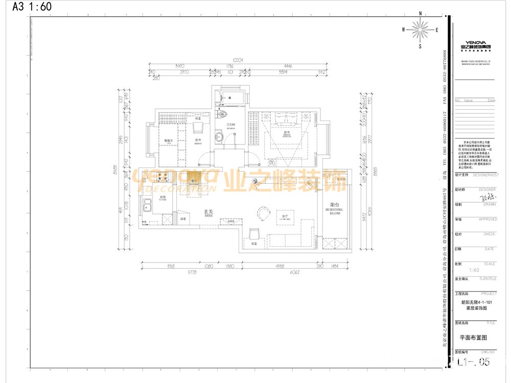
户型图

餐厅

客厅





书房

卧室





京公安网备11010502040911