240㎡五居现代简约风格陕师大家属院
发布时间:
2019年07月25日
小区:陕师大家属院 面积:240㎡ 户型:五居 风格:现代简约风格
设计说明
本案装修案例地址为陕西师范大学长安校区家属院,户型为顶跃,一家三口,设计过程中,因客户为历史系教授,博士生导师,桃李满天下,没有奢华的装饰,只有朴实的穿着与富有哲理的话语,家中最多的便是书了,遨游书海,感受历史长河中留下的精神文明。
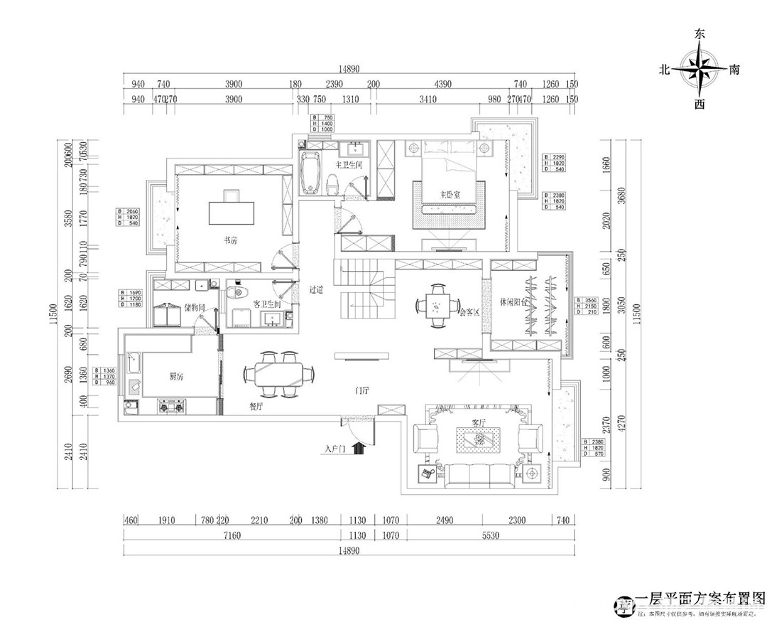
原始结构优缺点:南北通透,居于顶层采光也很好,空间的功能性需求都可以满足,公共区域与厨房设计是主体关注点。
改造方案:利用线条的形体和色彩的调和让原本狭长沉闷的空间有一些灵动,简约并不等于简单,无彩色系也能体现不同的味道。
户型图

客厅



餐厅

休闲区


玄关

卧室

书房

厨房





京公安网备11010502040911