105㎡三居后现代风格秦小新居
发布时间:
2019年07月20日
小区:秦小新居 面积:105㎡ 户型:三居 风格:后现代风格
设计说明
本案的设计风格为后现代 ,无处不体现房主个性的艺术气质。设计手法上从整体到局部、从空间到室内陈列塑造,亮点在于入户玄关处,底下的大理石台子里面可种植多肉植物,平淡中增添一丝生活气息,给人一种精美印象。设计的主要元素就是具有简约美的黑白灰元素,部分区域用特别鲜艳的抱枕和地毯搭配,具有较强的抒情性。不同质感的灰贯穿了整个空间的不同区域,通过装饰画等不同形式,传达着整个空间气质的连贯性和一致性。
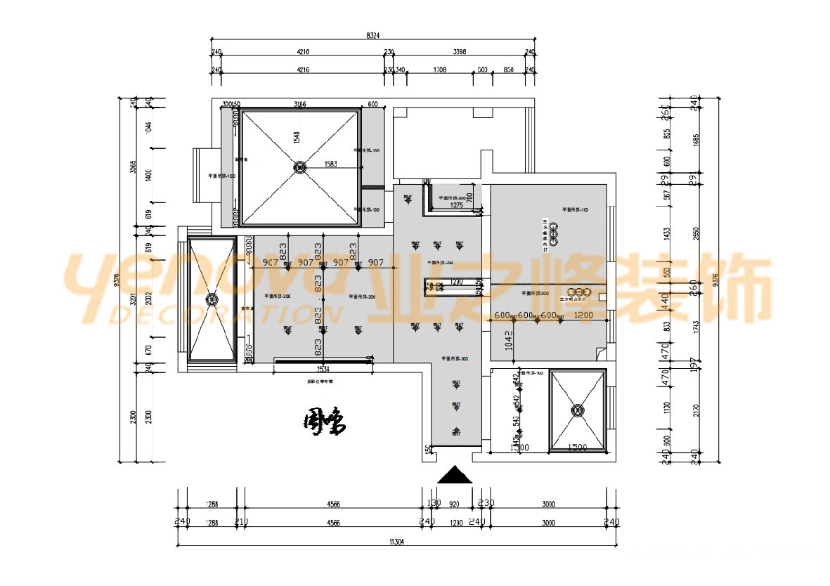
户型图

客厅



餐厅

厨房





京公安网备11010502040911