95㎡二居新中式风格和度华府
发布时间:
2019年07月18日
小区:和度华府 面积:95㎡ 户型:二居 风格:新中式风格
设计说明
中式风格的古色古香与现代风格的简单素雅自然衔接,使生活的实用性和对传统文化的追求同时得到了满足。影视墙的造型简洁现代,却在醒目位置饰以中式书法,这种绝妙的组合给人以强烈的视觉意志力,成为时尚与古典的柔媚结合。
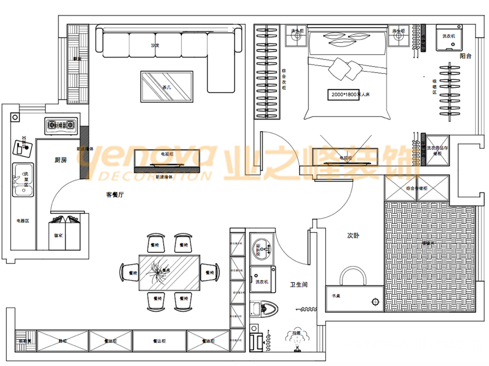
户型图

客厅


餐厅


中式风格的古色古香与现代风格的简单素雅自然衔接,使生活的实用性和对传统文化的追求同时得到了满足。影视墙的造型简洁现代,却在醒目位置饰以中式书法,这种绝妙的组合给人以强烈的视觉意志力,成为时尚与古典的柔媚结合。




